Gewerbe mieten - Avenue De La Gare 11, 1680 Romont FR
Warum Sie diese Immobilie lieben werden
Modularer Raum nach Bedarf
Optimale Sichtbarkeit bei Bahnhöfen
Öffentlicher Parkplatz 24/7 verfügbar
Besichtigung vereinbaren
Besichtigung buchen
Industrie
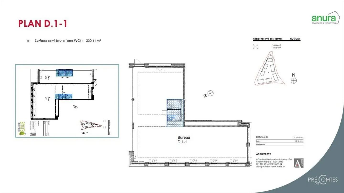
Romont - Handel 201 m2
Eine neue Gelegenheit für Ihr Unternehmen! Nutzfläche von 201 m2 zu vermieten
Direkt gegenüber dem Bahnhof Romont, über dem Einkaufszentrum MIGROS, steht diese modulare Fläche zur halb-rohen Vermietung zur Verfügung:
* Halb-rohe Fläche nach Belieben des Mieters anpassbar * Optimale Sichtbarkeit gegenüber den Bahnhöfen von Romont * Zugang zur Fläche mit dem Aufzug * Öffentliches Parken für Kunden, 24 Stunden am Tag geöffnet * Innenhof, der von öffentlichen Wegen zur Altstadt ...
Kostenaufstellung
- Nettokosten
- CHF 4’523
- Zusätzliche Kosten
- CHF 30
- Gesamtkosten
- CHF 4’523
Immobiliendetails
- Verfügbar ab
- Nach Vereinbarung
- Wohnfläche
- 201 m²



