Bürofläche mieten - Grundstrasse 10, 6343 Rotkreuz
Warum Sie diese Immobilie lieben werden
Helle Räume mit großen Fenstern
Gemeinschaftsküche vorhanden
Optimale Verkehrsanbindung
Besichtigung vereinbaren
Besichtigung mit Valeria buchen
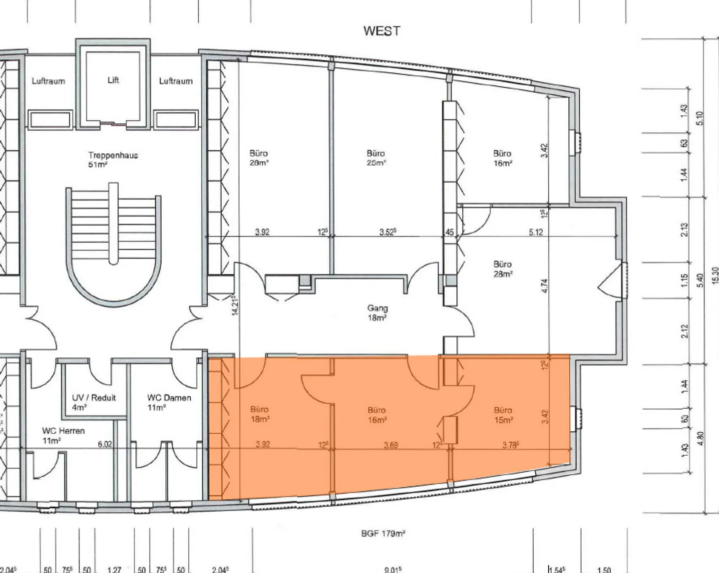
Plug + Work – Ihr bezugsbereites Büro an der Grundstrasse 10, Rotkreuz
An zentraler Lage in Rotkreuz erwartet Sie eine moderne, helle Bürofläche mit funktionaler Ausstattung und optimaler Verkehrsanbindung. Ideal für Unternehmen, die Wert auf Effizienz, Komfort und Flexibilität legen.
Ab sofort bezugsbereit
* Helle, lichtdurchflutete Räume dank grosszügiger Fensterfronten
* Teeküche zur Mitbenutzung mit Mikrowelle und Kühlschrank (kein Wasseranschluss)
* Zahlreiche Einbauschränke bieten optimalen S...
Kostenaufstellung
- Nettokosten
- CHF 1'504
- Zusätzliche Kosten
- CHF 149
- Gesamtkosten
- CHF 1'504
Immobiliendetails
- Verfügbar ab
- Nach Vereinbarung
- Wohnfläche
- 59.5 m²
- Nutzfläche
- 59.5 m²



