Bürofläche mieten - Breitloostrasse 10, 8154 Oberglatt ZH
Warum Sie diese Immobilie lieben werden
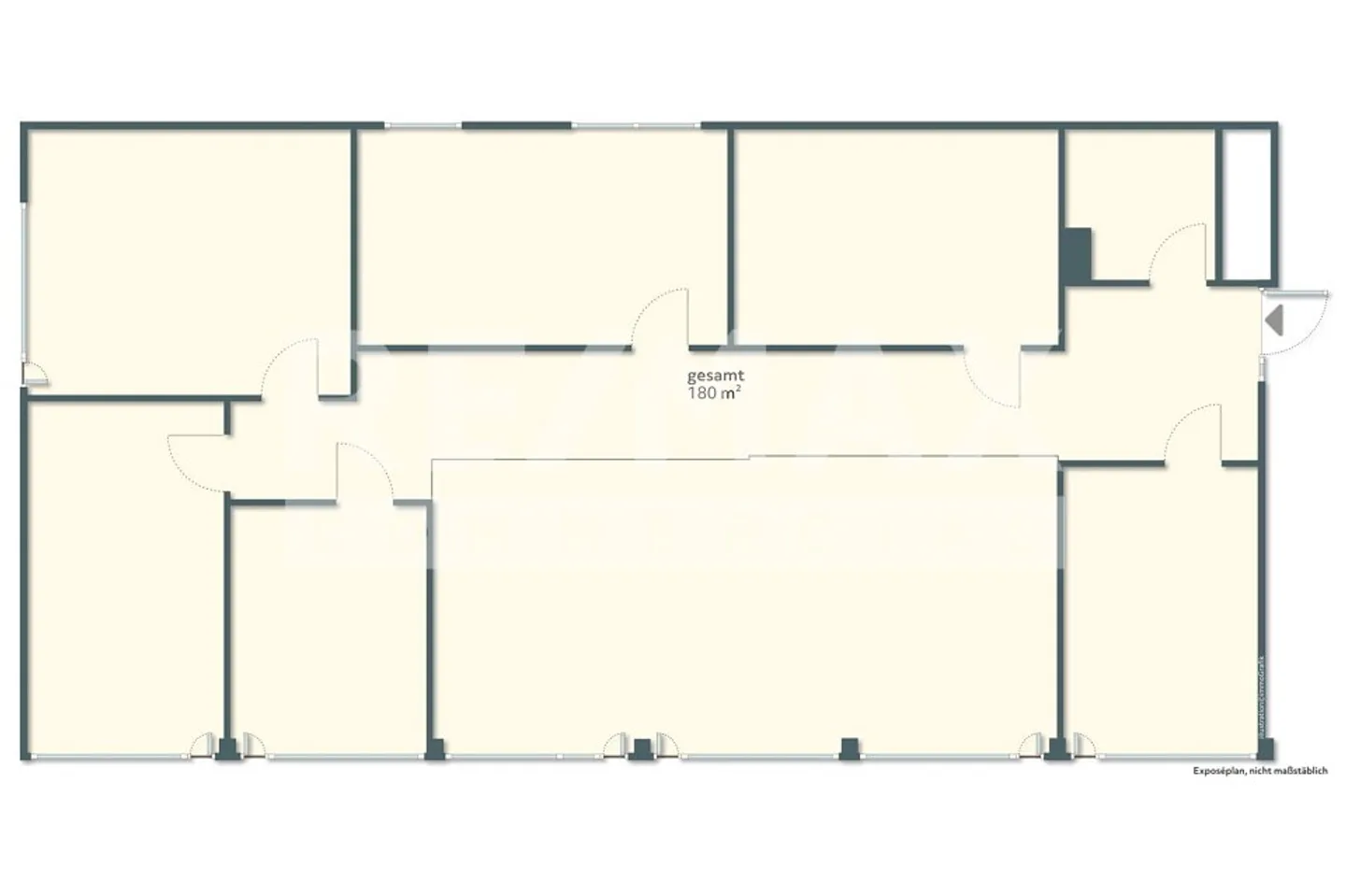
Flexible Raumaufteilung möglich
Gemeinschaftsküche und Lounge
Parkplätze für CHF 40/Monat
Besichtigung vereinbaren
Besichtigung mit Gisler buchen
Helle und gut ausgebaute büroeinheit im ebipark, breitloostrasse 10 in oberglatt zu vermieten
Die Büroeinheit befindet sich im 1. Obergeschoss im gesicherten und überwachten Werkhof der Fa. Eberhard Bau AG. Das Büro verfügt über eine Fläche von 180 m2. Die bestehende Raumaufteilung kann übernommen oder individuell angepasst werden.
Die Einheit ist mit Teppich ausgelegt und mit einem Brüstungskanal erschlossen. Elektro- und EDV-Anschlüsse sind in genügender Anzahl vorhanden.
Die Küche mit Aufenthaltsraum, die Nasszellen inkl. Umkleideräume und Duschen im Erdgeschoss stehen allen Mietern ...
Immobiliendetails
- Verfügbar ab
- 01.04.2025
- Zimmer
- 6
- Wohnfläche
- 180 m²
- Nutzfläche
- 180 m²




