Bürofläche mieten - Voltastrasse 1, 8044 Zürich
Warum Sie diese Immobilie lieben werden
Hohe Decken mit Stuck
Private Bereiche für Konzentration
Gemeinschaftsküche und Lounge
Besichtigung vereinbaren
Besichtigung mit Tabea buchen
Wo geschichte auf erfolg trifft und arbeiten zum erlebniss wird
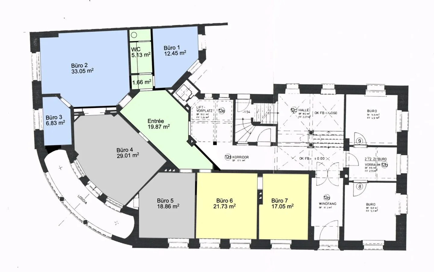
Stilvolle Büroräumlichkeiten im historischen Gebäude an ToplageDiese einzigartigen Büroräume befinden sich in einem historischen Gebäude an zentraler Lage und überzeugen durch ihren besonderen Charme. Hohe Decken mit kunstvollen Stuckaturen, beeindruckende Säulen im Eingangsbereich und grosse Fenster verleihen den Räumlichkeiten eine repräsentative und inspirierende Atmosphäre.
Die Büroräume sind Teil eines Gemeinschaftsbüros, verfügen jedoch über eigene, klar abgegrenzte Bereiche - ideal, wenn S...
Immobiliendetails
- Verfügbar ab
- 01.02.2026
- Baujahr
- 1900
- Wohnfläche
- 51.5 m²
- Nutzfläche
- 51.5 m²




