1 / 9

Gewerbe mieten - Rue de la Lécheretta 1, 1630 Bulle

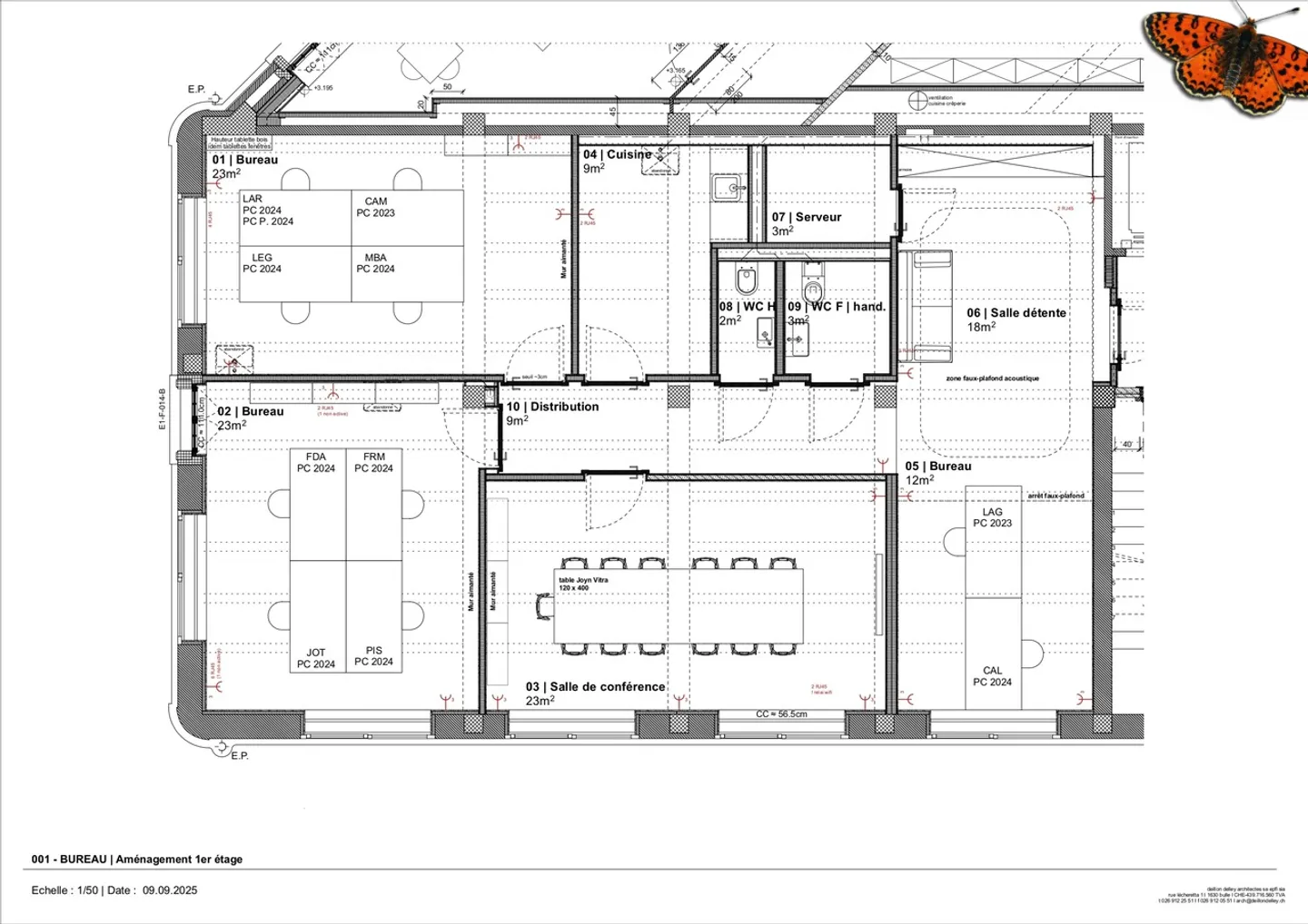
5 Zimmer • 126 m² Plot
CHF 2’900.-
-

Warum Sie diese Immobilie lieben werden

Geräumige, ruhige Büros

Voll ausgestattete Küche

Großer Konferenzraum

Besichtigung vereinbaren

Besichtigung buchen

Gérances Giroud SA
Diese Beschreibung wurde automatisch von Französisch übersetzt.

Magnifikante fläche zu vermieten - gegenüber dem bahnhof bulle!

Gewerbefläche zu vermieten - Ausgezeichnete Lage im Stadtzentrum von Bulle, gegenüber dem Bahnhof!

Entdecken Sie diese wunderschöne Gewerbefläche, die ideal im Herzen von Bulle gelegen ist, direkt gegenüber dem Bahnhof. Eine prestigeträchtige und strategische Lage, perfekt für ein Unternehmen, das Sichtbarkeit, Zugänglichkeit und Arbeitskomfort verbinden möchte.

Beschreibung der Räumlichkeiten:

- 3 geräumige und ruhige Büros

- Freundlicher Pausenraum für Ihre Pausen oder Teamessen

- Voll ausgestatt...

Immobiliendetails

Verfügbar ab
01.05.2026
Zimmer
5
Grundstücksfläche
126

Agentur

Gérances Giroud SA
Adresse:Rue du Centre 2, 1752 Villars-sur-Glâne
Ref: 6475.913
Online seit
21/10/2025
vor 16 Stunden

Standort

Rue de la Lécheretta 1, 1630 Bulle