Werbefläche mieten - Kernenriedstrasse 1, 3421 Lyssach
Warum Sie diese Immobilie lieben werden
Hoher Minergiestandard
Direkter Zugang zur Bushaltestelle
Restaurant im Gebäude
Besichtigung vereinbaren
Besichtigung mit Markus buchen
Attraktive Mietfläche an zentraler Lage in Lyssach
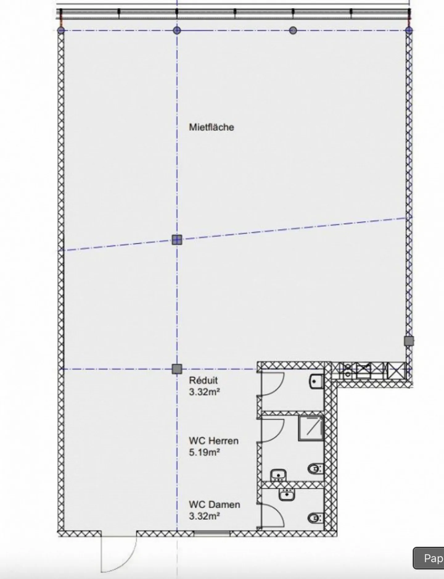
Flexible Mietfläche für Büro, Verwaltung, Praxis oder Ausstellung in Lyssach - 201.62 m² im 2. OG
An zentraler Lage in Lyssach an der Kernenriedstrasse 1 vermieten wir per 01. Juni 2025 oder nach Vereinbarung eine vielseitig nutzbare Gewerbefläche von 201.62 m² im 2. Obergeschoss.
Die Fläche eignet sich ideal für Büros, Verwaltungen, Praxen oder als Showroom/Ausstellungsfläche.
Ausstattung & Highlights:
* Hoher Ausbaustandard in Minergiebauweise
* Raumlüftung und Grundbeleuchtung
* Bodenanschlussd...
Kostenaufstellung
- Nettokosten
- CHF 3’550
- Zusätzliche Kosten
- CHF 650
- Gesamtkosten
- CHF 3’550
Immobiliendetails
- Verfügbar ab
- Nach Vereinbarung
- Wohnfläche
- 202 m²
- Nutzfläche
- 202 m²



