Bürofläche mieten - Industriestrasse 1, 8404 Winterthur
Warum Sie diese Immobilie lieben werden
Zentrale Lage mit Verkehrsanbindung
Gemeinschaftsküche vorhanden
Flexible Mieträume für Besprechungen
Besichtigung vereinbaren
Besichtigung buchen
«büro»
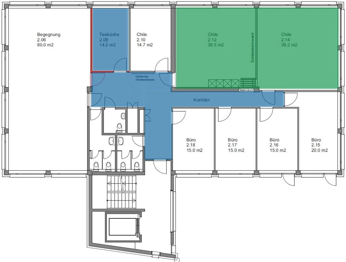
In zentraler Lage in Winterthur am Rande des Industriequartiers Grüze steht das Zentrum Grüze. Direkt vor der Tür gibt es drei Bushaltestellen mit drei Buslinien. Nur wenige Gehminuten entfernt befindet sich der Bahnhof Winterthur-Grüze, welcher in nächster Zukunft massiv ausgebaut wird.Die Liegenschaft hat einen Aussenparkplatz mit 50 kostenpflichtigen Parkfeldern für Besuchende, Mitarbeitende, Kunden und Kundinnen. Parkfelder können auf Wunsch (falls freie vorhanden) mit eingeschränkter Parkze...
Kostenaufstellung
- Nettokosten
- CHF 240
- Zusätzliche Kosten
- CHF 27
- Gesamtkosten
- CHF 240
Immobiliendetails
- Verfügbar ab
- Nach Vereinbarung



