Mischgenutztes Gebäude mieten - Rue De Bourg 25, 1003 Lausanne
Warum Sie diese Immobilie lieben werden
Strategische Lage im Zentrum
Gut angebunden an ÖPNV
Ideal für gewerbliche Nutzung
Besichtigung vereinbaren
Besichtigung mit maison.work buchen
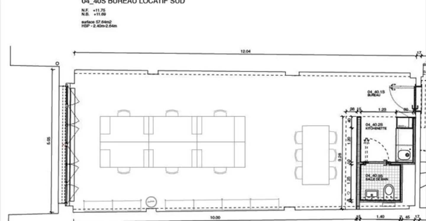
Nutzen Sie eine einzigartige Gelegenheit: ein Büro im 4. Stock von ca. 60m² im Herzen der Stadt Lausanne.
Es besteht aus:
- Büro
- Eine Küchenzeile
- Eine separate Toilette
Miete: CHF 1.900,00 + CHF 100,00 Vorauszahlung für Heizung, Warmwasser und Nebenkosten.
Eine strategische Lage in Lausanne
Im Herzen von Lausanne, einer dynamischen und florierenden Stadt, befindet sich dieser Raum an einem privilegierten Standort. Das Gebiet ist sehr gut an den öffentlichen Nahverkehr (Bus, U-Bahn, LEB) angeb...
Kostenaufstellung
- Nettokosten
- CHF 2’000
- Zusätzliche Kosten
- CHF 100
- Gesamtkosten
- CHF 2’000
Immobiliendetails
- Verfügbar ab
- Nach Vereinbarung



