Mischgenutztes Gebäude mieten - Rue Du Pré-De-La-Fontaine 19, 1242 Satigny
Warum Sie diese Immobilie lieben werden
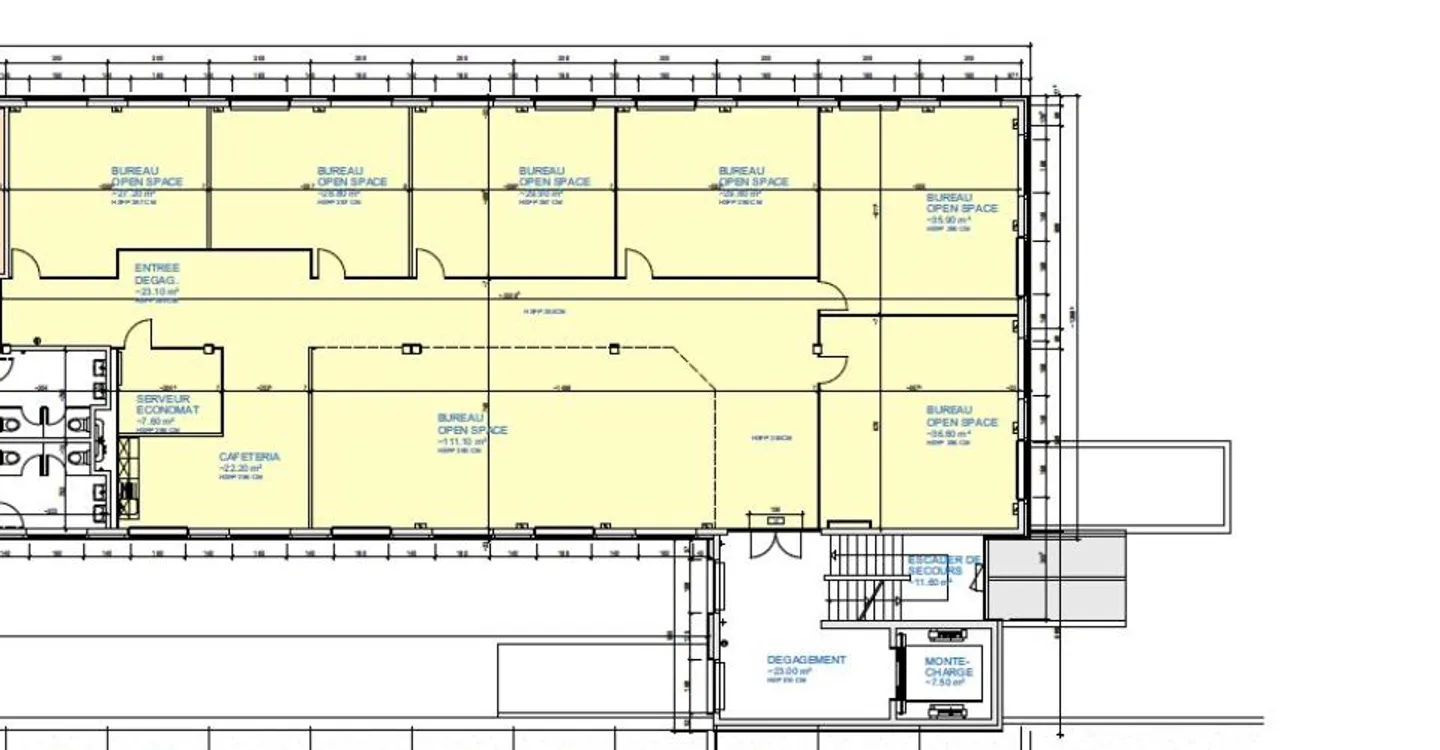
Teilbare Fläche ab 200 m²
Helle und flexible Grundrisse
Erstklassige Lage in ZIMEYSA
Besichtigung vereinbaren
Besichtigung mit maison.work buchen
Gemischte Flächen zu vermieten - Satigny - Ab 200 m2
In einem modernen Gebäude, profitiert von einer optimalen Lage im Herzen von ZIMEYSA. Diese Flächen sind ideal für Büros und/oder Werkstätten. Die Räumlichkeiten sind in gutem Zustand, hell und modular.
Highlights:
Teilbare Fläche ab 200 m2
Helligkeit und modulare Etagen
Lage: ZIMEYSA
Attraktive Miete
Technische Merkmale:
Lastenaufzug von 1T6
Bodenlast: 500 kg
Deckenhöhe: 3m10 (von Platte zu Platte)
Warum CBRE:
Lokale Präsenz
Detaillierte Anal...
Kostenaufstellung
- Nettokosten
- CHF 8’459
- Zusätzliche Kosten
- CHF 2’917
- Gesamtkosten
- CHF 8’459
Immobiliendetails
- Verfügbar ab
- Nach Vereinbarung
- Wohnfläche
- 350 m²
- Nutzfläche
- 350 m²



