Mehrfamilienhaus mieten - 1632 Riaz
Warum Sie diese Immobilie lieben werden
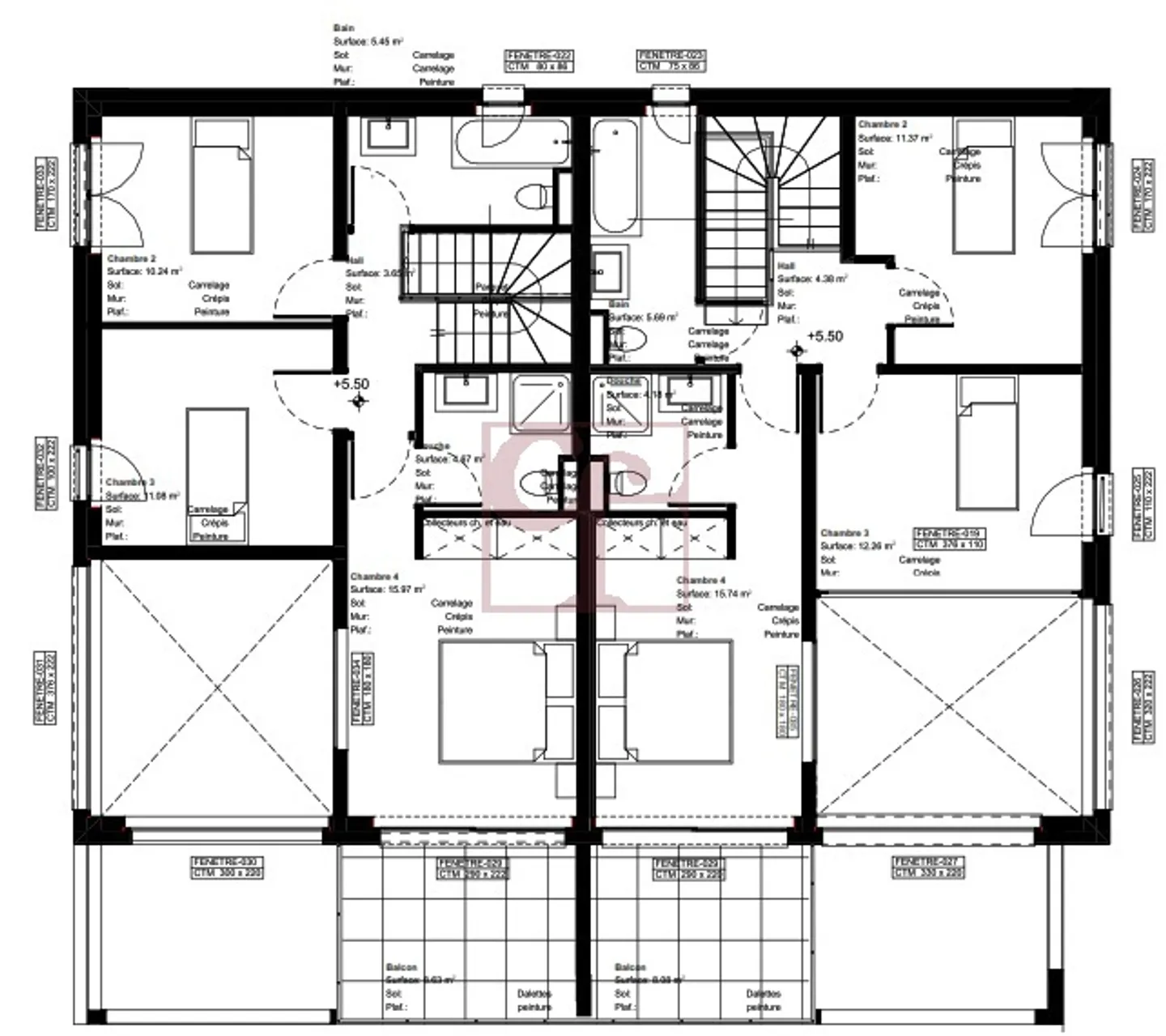
Geräumige Balkone und Terrasse
Dreifachverglaste Fenster
Ruhige, familienfreundliche Lage
Besichtigung vereinbaren
Besichtigung buchen
Villen mit 4,5 und 5,5 zimmern von außergewöhnlicher qualität zur miete
In der Nähe von Natur und Einrichtungen, diese neuen Mietwohnungen ab CHF 2'590.-/Monat ohne Nebenkosten. Ideal für Familien, das Viertel ist ruhig und sicher, mit Grund- und Sekundarschulen in der Nähe.
Der Transport ist einfach mit einer Bushaltestelle und einer Autobahnausfahrt in Reichweite.
Die Wohnungen verfügen über Balkone, eine Terrasse und ein Dachterrassen, Dreifachverglasung und Fenster mit natürlichen Licht.
Ein überdachter Parkplatz und ein Außenparkplatz sind verfügbar, sowie e...
Kostenaufstellung
- Nettokosten
- CHF 2’840
- Zusätzliche Kosten
- CHF 250
- Gesamtkosten
- CHF 2’840
Immobiliendetails
- Verfügbar ab
- Nach Vereinbarung
- Baujahr
- 2025



