Mischgenutztes Gebäude mieten - Luzernstrasse 11, 6106 Werthenstein
Warum Sie diese Immobilie lieben werden
Helle Räume im Erdgeschoss
Anpassbare Raumaufteilung
Direkter Zugang zu öffentlichen Verkehrsmitteln
Besichtigung vereinbaren
Besichtigung mit Bürozeiten buchen
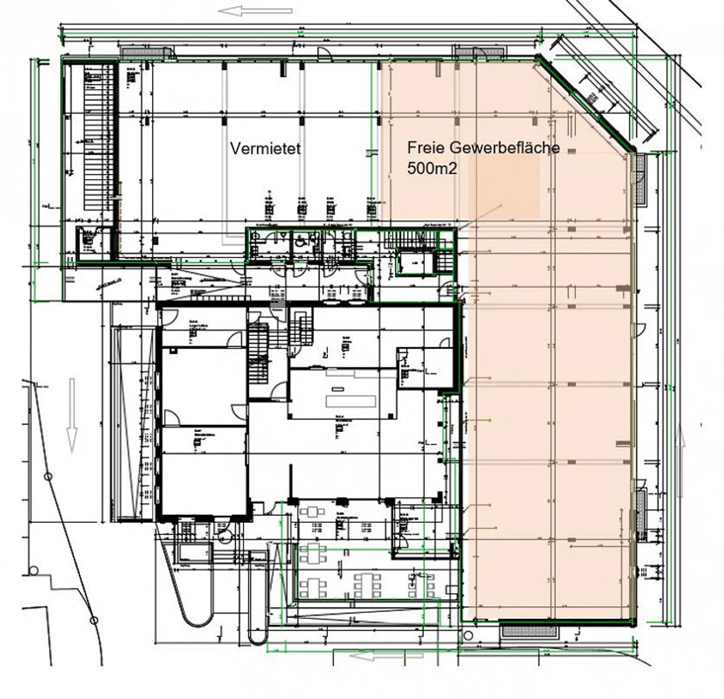
Bürofläche, praxisfläche, verkauf, showroom (möbliert verfügbar)
Grosszügige Gewerbefläche nach Absprache zu vermieten
Heller Raum im Erdgeschoss, frei ausbaubar
Ideal für Büro, Praxis, Verkauf, Showroom, Fabrikladen usw.
Möblierte Büroplätze verfügbar
Vom Grundstück ist in 20min. die Stadt Luzern zu erreichen, es gibt genügen Parkplätze, Bahnhof und Bushaltestelle direkt vor der Haustür.
-Bei Kleinflächenmieten verteuert sich die Miete auf 110.-/m2/Jahr
-Klapptore für einen freien Zugang von 3.20m
-Hohe Räume, relativ frei unterteilbar
-Boden Monobeton mit eingelegt...
Immobiliendetails
- Verfügbar ab
- Nach Vereinbarung
- Baujahr
- 2023



