Hobbyraum mieten - Rheinstrasse 63a, 7012 Felsberg
Warum Sie diese Immobilie lieben werden
Sofort bezugsbereit
Nachhaltige Energieversorgung
Ideal für kleine Küche
Besichtigung vereinbaren
Besichtigung mit Niculin buchen
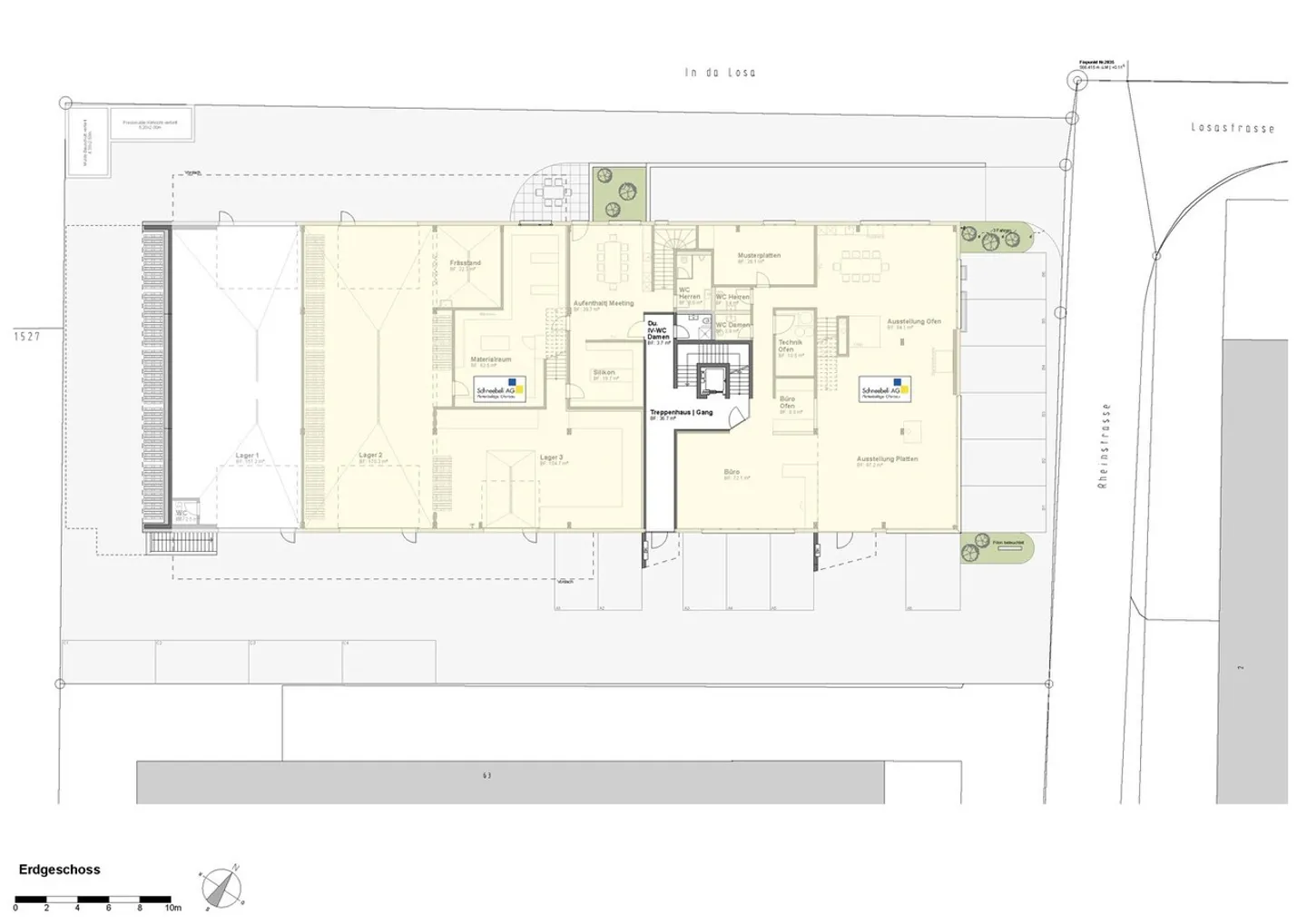
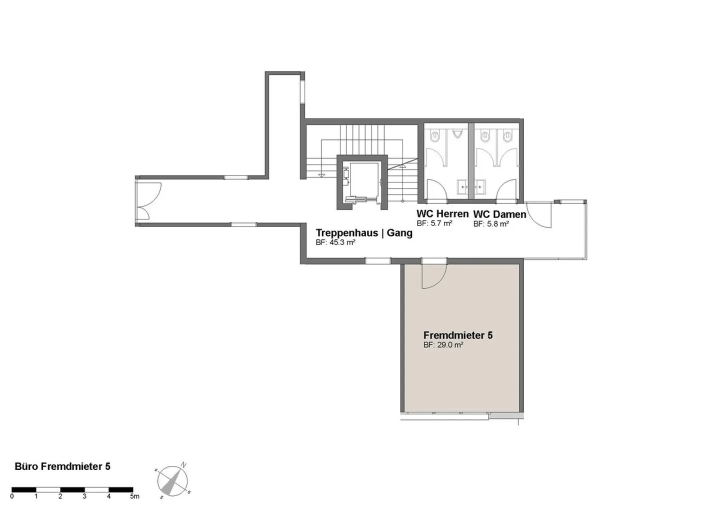
Hobbyraum im neubau gewerbepark felsberg
Sichern Sie sich jetzt Ihre moderner Hobbyraum im attraktiven Neubau an der Rheinstrasse 63a in Felsberg mit Bezugstermin 01.04.2026.
Ihre Vorteile auf einen Blick:
* Neubau mit vorhandenem Grundausbau : sofort bezugsbereit
* Grundausbau des Hobbyraumes: Kugelgarnteppich, Bodenheizung, elektrische Verbund-Raffstoren, 3-fach verglaste Fenster, Elektroinstallationen und Beleuchtung
* Wasseranschluss vorhanden : ideal für den Einbau einer kleinen Küche
* Zwei WC-Anlagen auf der Etage zur Mitbenützung
Kostenaufstellung
- Nettokosten
- CHF 500
- Zusätzliche Kosten
- CHF 70
- Gesamtkosten
- CHF 500
Immobiliendetails
- Verfügbar ab
- 01.04.2026
- Baujahr
- 2026
- Wohnfläche
- 29 m²
- Nutzfläche
- 29 m²



