Maisonette kaufen - Via Scairone, 6818 Melano
Warum Sie diese Immobilie lieben werden
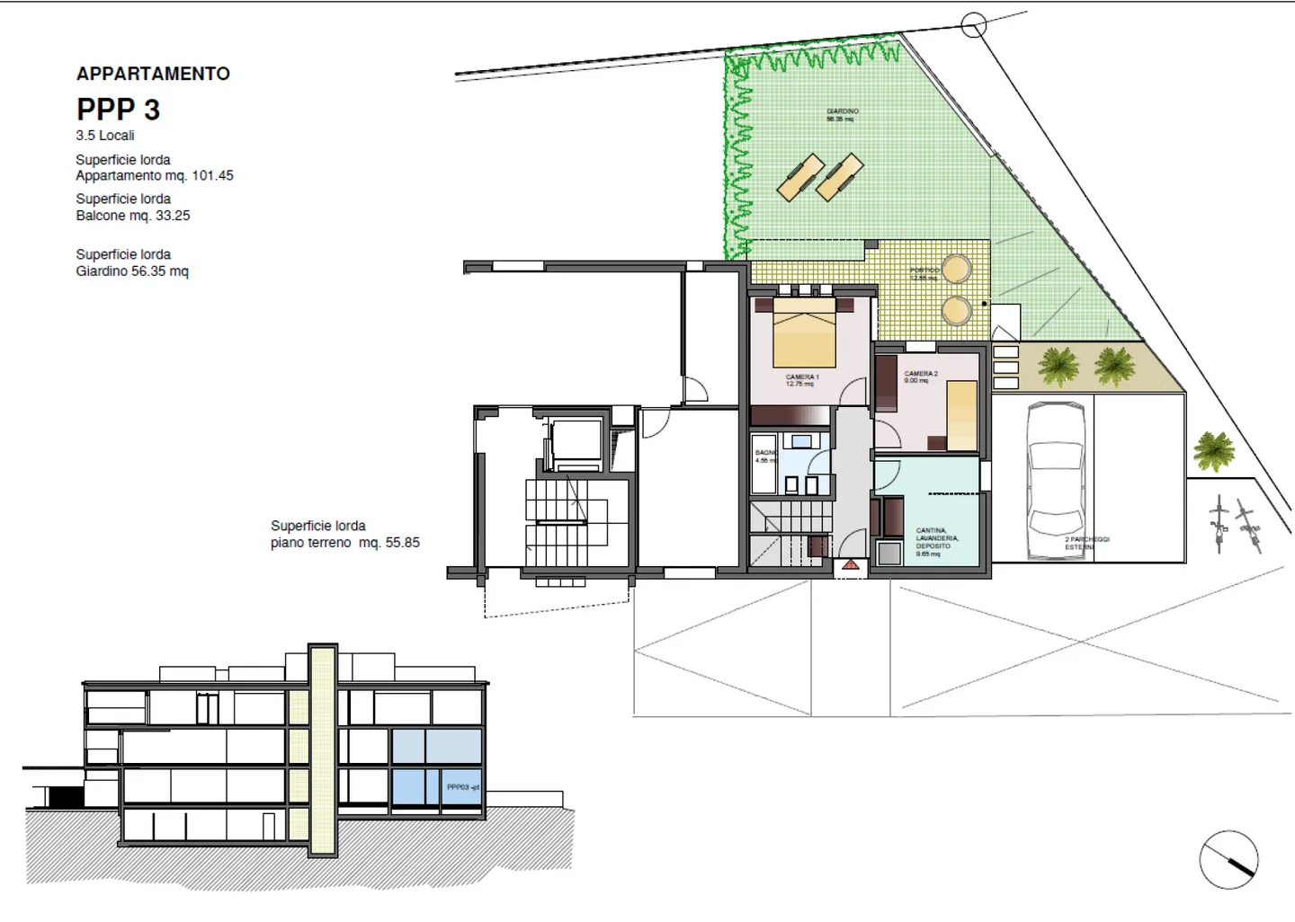
Balkon mit Seeblick
Geräumiger Privatgarten
Nahe an Einrichtungen und Verkehr
Besichtigung vereinbaren
Besichtigung buchen
Duplex-wohnung 3.5 zimmer mit garten - neubau
ERWARTETE ÜBERGABE SOMMER 2026
In Melano, in einer grünen und flachen Gegend mit herrlichem Seeblick, wird diese moderne und komfortable Residenz mit drei Etagen entstehen, die aus sieben Wohneinheiten besteht.
Ein idealer Kontext für diejenigen, die die wichtigsten Dienstleistungen in der Nähe ihres Zuhauses haben möchten.
In der Nähe der neuen Residenz befinden sich Supermärkte, Apotheken, Restaurants, Schulen, Kindergärten, Schönheitszentren, öffentliche Verkehrsmittel und vergessen wir nicht de...
Immobiliendetails
- Verfügbar ab
- Nach Vereinbarung
- Zimmer
- 3.5
- Baujahr
- 2023



