Wohnung kaufen - Via Giuseppe Corti, 6828 Balerna
Warum Sie diese Immobilie lieben werden
Hochwertige Ausführungen
Offene Wohnfläche
Überdachte Terrasse zum Entspannen
Besichtigung vereinbaren
Besichtigung mit Paolo buchen
Modern, designtypisch, hell und elegant
Modern, designtypisch, hell und elegant
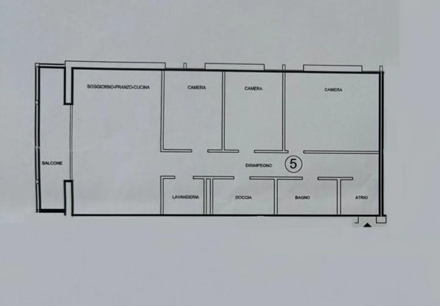
Modernes und helles Apartment, erbaut 2022, mit 4,5 Zimmern, gelegen im ersten Stock eines eleganten Wohnhauses mit nur 11 Einheiten.
In einer ruhigen und sonnigen Lage, fern vom Autoverkehr und nahe bei allen Annehmlichkeiten.
Unser Angebot hat folgende Stärken:
* Immobiliensache mit hochwertigen Ausführungen;
* Zeitgemäßes und komfortables Ambiente;
* Hypothek von 1% bis 2029.
Die großzügige Fläche von 127 m² umfasst einen Eingang mit Einbauschränken, eine offe...
Immobiliendetails
- Verfügbar ab
- 13.11.2024
- Zimmer
- 4.5
- Baujahr
- 2021
- Wohnfläche
- 140 m²
- Nutzfläche
- 140 m²
- Etage
- 1.
- Geschosse
- 3



