Wohnung kaufen - Rue Du Grand Borgeaud, 1406 Cronay
Warum Sie diese Immobilie lieben werden
Geräumige Privatgärten
Atemberaubende Alpenpanoramen
Anpassbare Ausstattungen verfügbar
Besichtigung vereinbaren
Besichtigung mit Coralie buchen
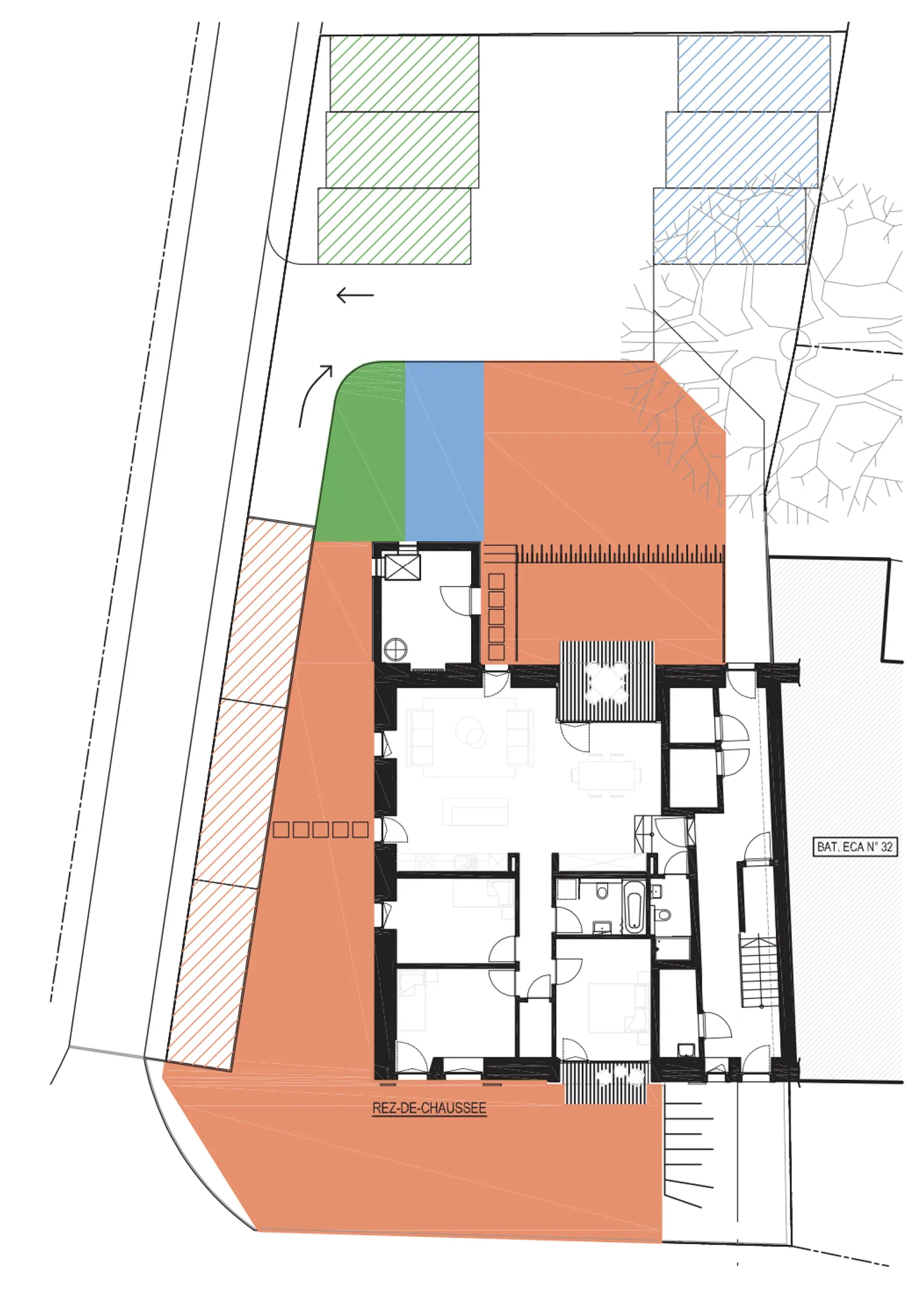
Coralie Anker freut sich, Ihnen diese neue Promotion in Cronay, nur 6 km von Yverdon-les-Bains entfernt, vorzustellen.
Die Lage ist ideal. Sie werden die Ruhe des Landlebens genießen und in weniger als 10 Minuten schnell die Autobahnen sowie das Stadtzentrum von Yverdon-les-Bains erreichen.
Die großzügigen Wohnflächen der zukünftigen Wohnungen sowie der herrliche Blick auf die Alpen versprechen eine sehr angenehme Lebensqualität.
Dieser ehemalige Bauernhof, der vollständig renoviert wird, wird 3...
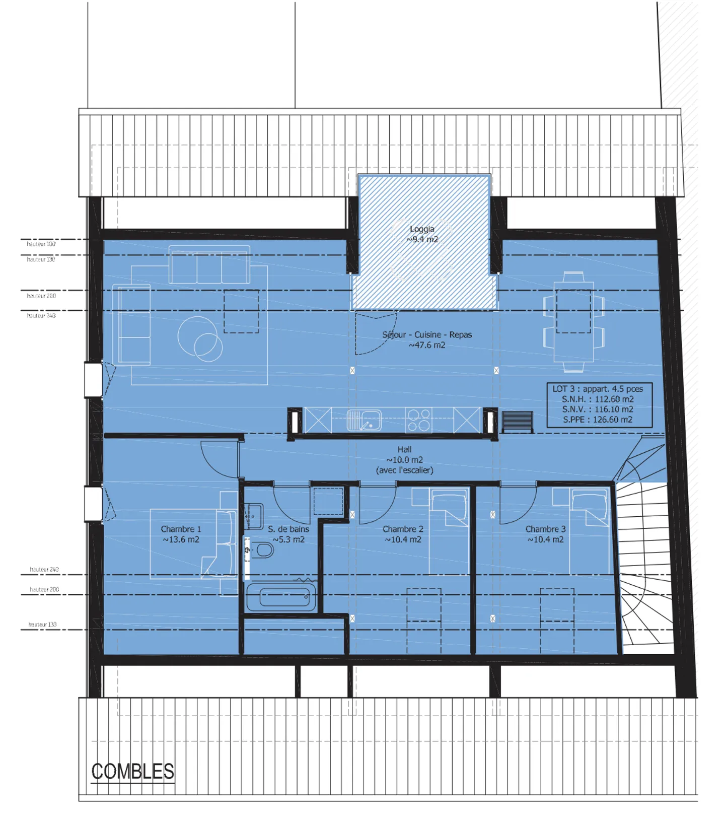
Immobiliendetails
- Verfügbar ab
- Nach Vereinbarung
- Zimmer
- 4.5
- Badezimmer
- 2
- Baujahr
- 2026
- Wohnfläche
- 105 m²
- Geschosse
- 3



