Wohnung kaufen - Route De La Genevrausaz, 1822 Chernex
Warum Sie diese Immobilie lieben werden
Moderne Renovierung mit hochwertigen Materialien
Geräumige Terrasse und Loggia
Nahe Montreux und öffentliche Verkehrsmittel
Besichtigung vereinbaren
Besichtigung buchen
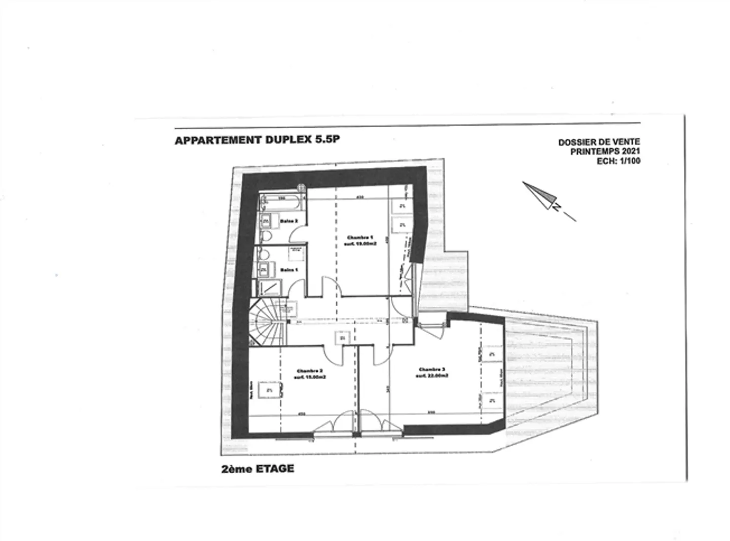
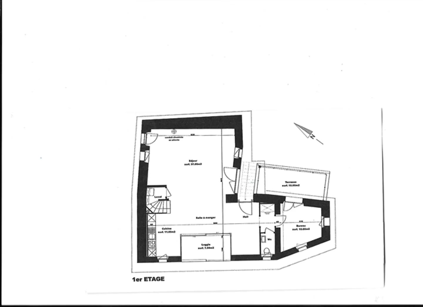
«die höhen von montreux - charmant 5.5. maisonette-zimmer mit blick auf die alpen und den see»
Diese charaktervolle Maisonette auf zwei Ebenen, modern, im Jahr 2014 komplett renoviert und derzeit vermietet, wurde mit hochwertigen Materialien und Oberflächen renoviert. Es ist Teil eines kleinen Dorfgebäudes.
Dieses Anwesen ist hell und verfügt über 3 geräumige Schlafzimmer, ein Badezimmer-Bad/WC, ein Duschbad/WC mit Platz für eine Waschmaschine, eine Toilette für Besucher, ein Büro, ein kleines Zimmer, eine Einbauküche und ein Ess-Wohnzimmer mit Platz für einen Kamin. Eine Terrasse und eine...
Immobiliendetails
- Verfügbar ab
- Nach Vereinbarung
- Zimmer
- 5
- Baujahr
- 2014



