Wohnung kaufen - Ochsenweg, 9122 Mogelsberg
Warum Sie diese Immobilie lieben werden
Zwei grosse Terrassen
Nachhaltiges Energiesystem
Familienfreundliche Lage
Besichtigung vereinbaren
Besichtigung mit Bruno buchen
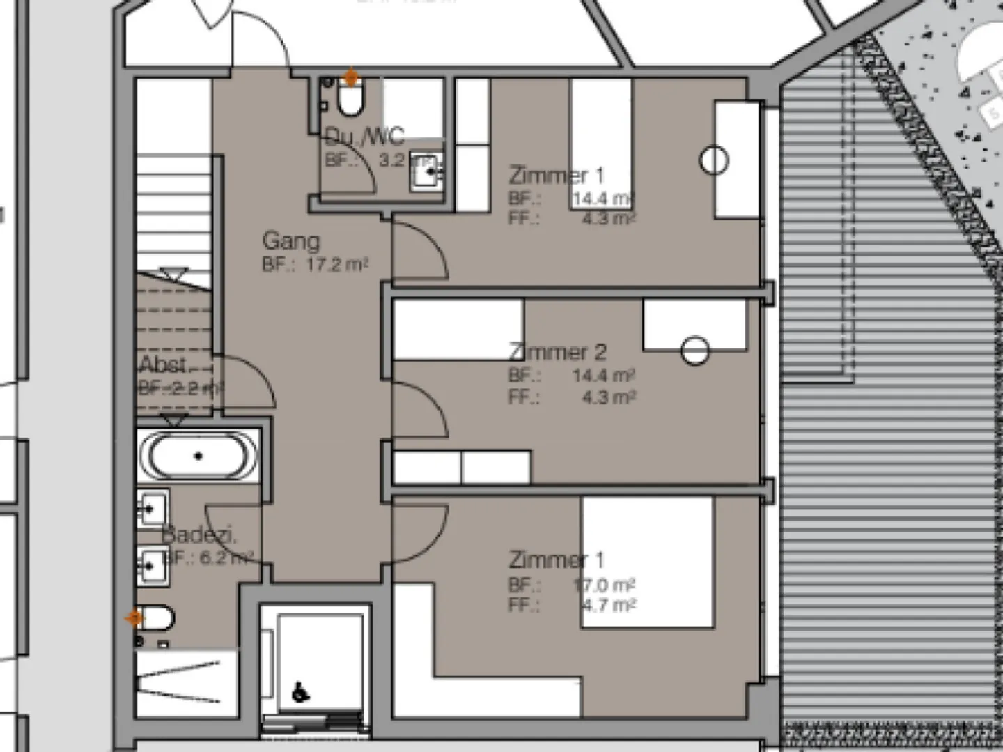
Maisonettewohnung A3.2 Mit der schönen Maisonettewohnung erreichen Sie, neben der Grosszügigkeit, ein Wohngefühl wie im eigenen Haus. Die Wohnung wird ebenerdig von der Sonnmattstrasse aus erschlossen und hat mit dem internen Abgang eine Erschliessung der Schlaf- und Arbeitszimmer. Der grosse Keller ist von Aussen und von Innen erschlossen. Zwei grosse Terrassen / Sitzplätze laden zum Verweilen ein. Der Keller ist direkt aus der Wohnung zugänglich. Mit dem Lift erreicht man schwellenfrei und beq...
Immobiliendetails
- Verfügbar ab
- Nach Vereinbarung
- Zimmer
- 5.5
- Badezimmer
- 1
- Baujahr
- 2025
- Wohnfläche
- 136 m²
- Gartenfläche
- 60 m²
- Terassenfläche
- 17 m²
- Etage
- 1.
- Geschosse
- 4



