1 / 12

Wohnung kaufen - Lindawäg, 7075 Churwalden

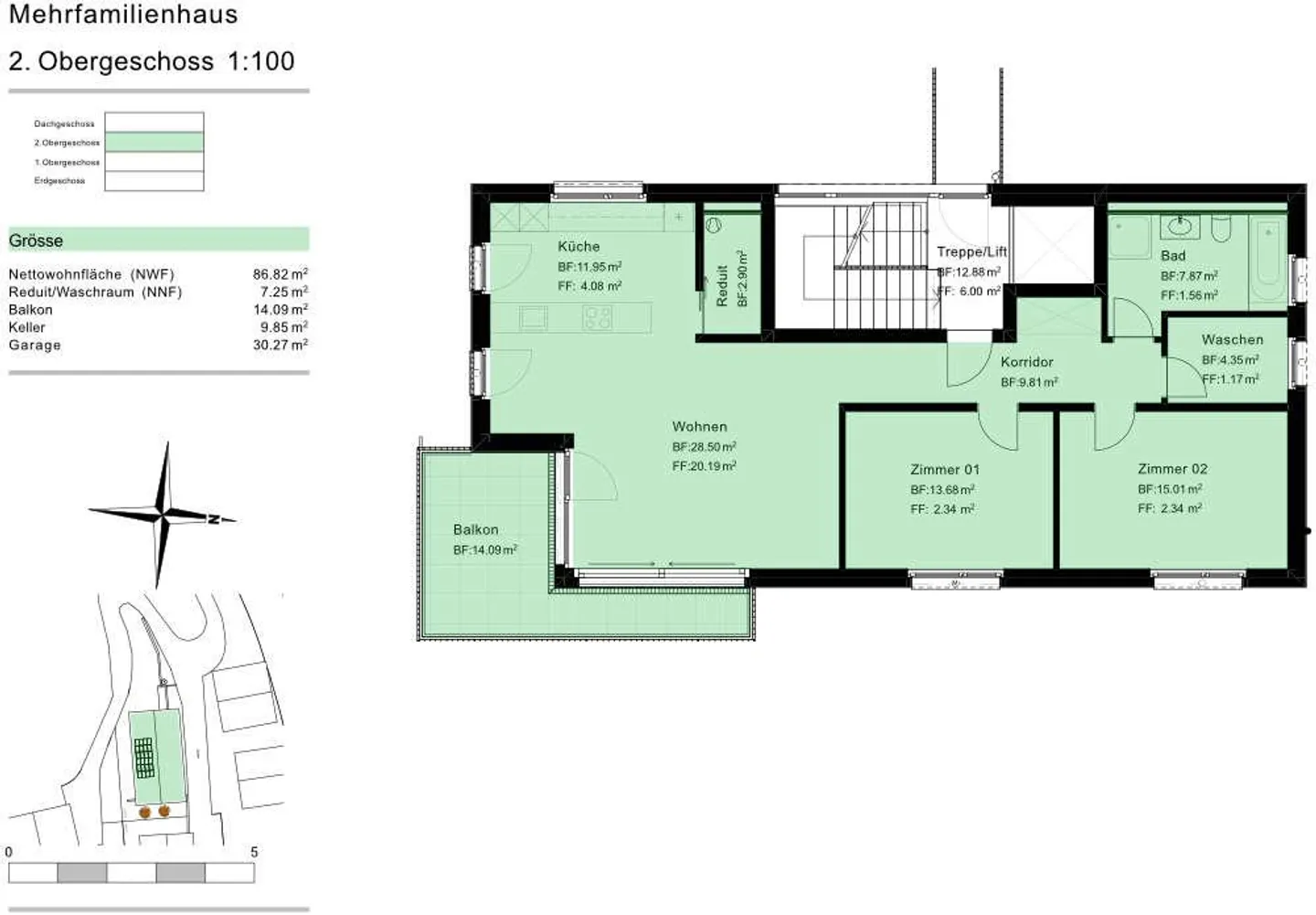
3.5 Zimmer • 87 m² • 2. Etage
CHF 770’000.-
CHF 6’525 m²

Warum Sie diese Immobilie lieben werden

Atemberaubender Bergblick

Privater Balkon zum Entspannen

Liftzugang für Bequemlichkeit

Besichtigung vereinbaren

Besichtigung mit Ingrid buchen

Ingrid Petersen
Hemmi Immobilien

Moderne 3.5-zimmer wohnung erstwohnsitz

Entdecken Sie diese exklusive 3.5-Zimmer-Wohnung. Mit 87 m² Wohnfläche im 2. Stock bietet diese Minergie Neubauwohnung höchste Wohnqualität und Energieeffizienz. Der Baustart erfolgt im Frühling 2026.

_Die Wohnung überzeugt mit:_

* Grosszügige Raumaufteilung: 3.5 helle Zimmer mit optimaler Nutzung der Architektur

* Schöner Ausblick: Geniessen Sie die herrliche Sicht auf die umliegende Berglandschaft

* Privater Balkon: Perfekt zum Entspannen

* Komfortable Ausstattung: Lift im Gebäude für bequemen Zuga...

Immobiliendetails

Verfügbar ab
Nach Vereinbarung
Zimmer
3.5
Baujahr
2026
Wohnfläche
87
Nutzfläche
118
Etage
2.

Eigenschaften

Garage
Balkon
Unverbaubare Aussicht
Lift
Neubau
Minergie-zertifiziert
Kinderfreundlich

Agentur

Hemmi Immobilien
Hemmi Immobilien
Adresse:Hauptstrasse 135, 7075, Churwalden
(11 reviews)
Ref: 2hw5k.lwq7k
Online seit
30/08/2025
vor 2 Monaten

Standort

Lindawäg, 7075 Churwalden