Dachgeschosswohnung kaufen - Lindawäg, 7075 Churwalden
Warum Sie diese Immobilie lieben werden
Atemberaubender Bergblick
Privater Balkon zum Entspannen
Liftzugang zum Penthouse
Besichtigung vereinbaren
Besichtigung mit Ingrid buchen
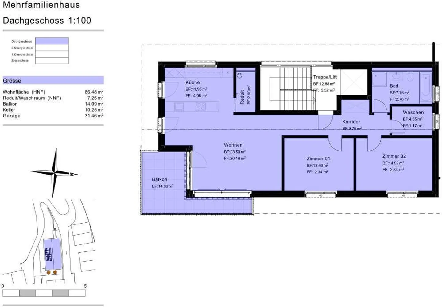
Moderne dachwohnung für den erstwohnsitz
Entdecken Sie diese exklusive 3.5-Zimmer-Dachwohnung. Mit 87 m² Wohnfläche im 3. Stock bietet diese Minergie Neubauwohnung höchste Wohnqualität und Energieeffizienz. Der Baustart erfolgt im Frühling 2026.
_Die Wohnung überzeugt mit:_
* Grosszügige Raumaufteilung: 3.5 helle Zimmer mit optimaler Nutzung der Dachgeschoss-Architektur
* Schöner Ausblick: Geniessen Sie die herrliche Sicht auf die umliegende Berglandschaft
* Privater Balkon: Perfekt zum Entspannen mit Blick auf die idyllische Dorflandschaf...
Immobiliendetails
- Verfügbar ab
- Nach Vereinbarung
- Zimmer
- 3.5
- Baujahr
- 2026
- Wohnfläche
- 87 m²
- Nutzfläche
- 122 m²
- Etage
- 3.




