Wohnung kaufen - Lindawäg, 7075 Churwalden
Warum Sie diese Immobilie lieben werden
Atemberaubender Bergblick
Privater Balkon zum Entspannen
Liftzugang für mehr Komfort
Besichtigung vereinbaren
Besichtigung mit Ingrid buchen
Moderne 3.5-zimmer wohnung erstwohnsitz
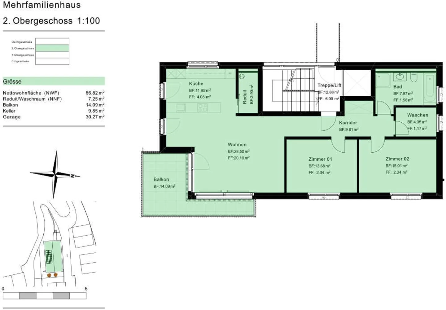
Entdecken Sie diese exklusive 3.5-Zimmer-Wohnung. Mit 87 m² Wohnfläche im 2. Stock bietet diese Minergie Neubauwohnung höchste Wohnqualität und Energieeffizienz. Der Baustart erfolgt im Frühling 2026.
_Die Wohnung überzeugt mit:_
* Grosszügige Raumaufteilung: 3.5 helle Zimmer mit optimaler Nutzung der Architektur
* Schöner Ausblick: Geniessen Sie die herrliche Sicht auf die umliegende Berglandschaft
* Privater Balkon: Perfekt zum Entspannen
* Komfortable Ausstattung: Lift im Gebäude für bequemen Zuga...
Immobiliendetails
- Verfügbar ab
- Nach Vereinbarung
- Zimmer
- 3.5
- Baujahr
- 2026
- Wohnfläche
- 87 m²
- Nutzfläche
- 118 m²
- Etage
- 2.




