Wohnung kaufen - Grabmatt, 5063 Wölflinswil
Warum Sie diese Immobilie lieben werden
Ideal für Ihr Traumhaus
Nah an öffentlichen Verkehrsmitteln
Zu Fuß zu den Annehmlichkeiten
Besichtigung vereinbaren
Besichtigung buchen
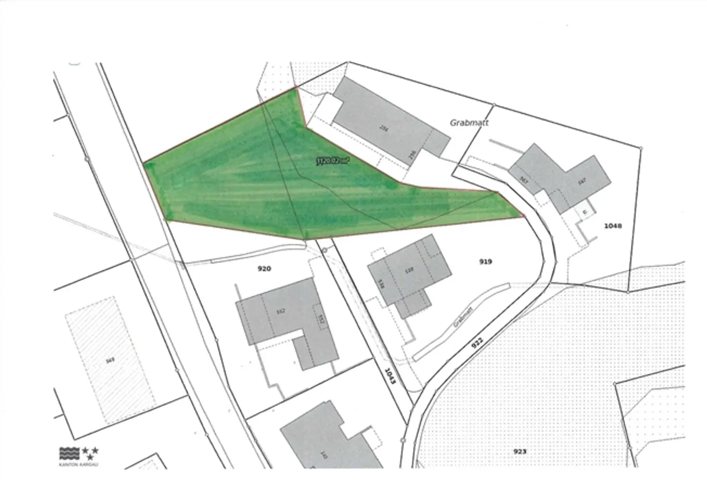
«bauland an sonniger hanglage»
Die Lage am Rande der Dorfzone von Wölflinswil im Fricktal an ganztägig besonnter Hanglage bietet optimale Möglichkeiten, sich den Traum vom Eigenheim zu erfüllen und einen persönlichen Wohlfühl- und Rückzugsort zu schaffen.
Die Bauland-Parzelle liegt in der Wohnzone W2 mit einer Ausnützungsziffer von 0.5 und umfasst ca. 1'120 m2. Die Parzellengrösse steht noch nicht endgültig fest, da sie von einer 1'733 m2 grossen Parzelle abgetrennt wird.
Die Bushaltestelle nach Aarau und Frick erreichen Sie ...
Immobiliendetails
- Verfügbar ab
- Nach Vereinbarung
- Grundstücksfläche
- 1120 m²



