Wohnung kaufen - Gaswerkstrasse, 8570 Weinfelden
Warum Sie diese Immobilie lieben werden
Hochwertige Holzelementbauweise
Minergie-P zertifiziert
Zentrale Lage nahe Bahnhof
Besichtigung vereinbaren
Besichtigung buchen
Letzte 4.5-zimmer-wohnungen am werkplatz - besichtigungen vor ort möglich!
Mit dem Bauprojekt Werkplatz entstehen insgesamt vier Mehrfamilienhäusern mit 49 grosszügigen Wohnungen an zentraler Lage in Weinfelden. Die Gaswerkstrasse liegt westlich des Zentrums in kurzer Gehdistanz zum Bahnhof.
Folgende Highlights erwarten Sie:
* Bezug Frühjahr 2026
* Überdurchschnittlich grosse Wohnflächen
* Hochwertige Holzelementbauweise
* Minergie-P
* Kontrollierte Wohnraumlüftung
* Photovoltaikanlage
* Fernwärme
* Innenausbau nach Wunsch
* Zentrale Lage in unmittelbarer Stadtnähe
* Tiefgaragenp...
Immobiliendetails
- Verfügbar ab
 - Nach Vereinbarung
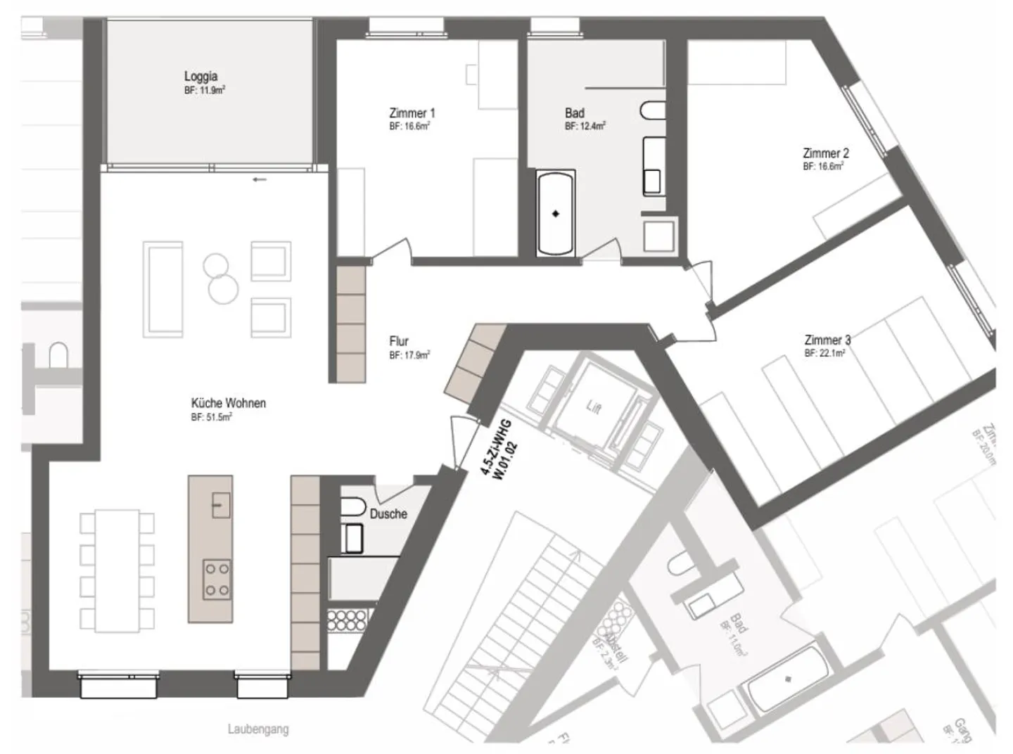
 - Zimmer
 - 4.5
 - Badezimmer
 - 2
 - Baujahr
 - 2026
 - Wohnfläche
 - 141 m²
 - Etage
 - 1.
 




