Wohnung kaufen - Avenue Des Bains, 1400 Yverdon-les-Bains
Warum Sie diese Immobilie lieben werden
Geräumiger 21 m² Balkon
Offene Küche und Wohnbereich
Parkplatz für Motorrad
Besichtigung vereinbaren
Besichtigung buchen
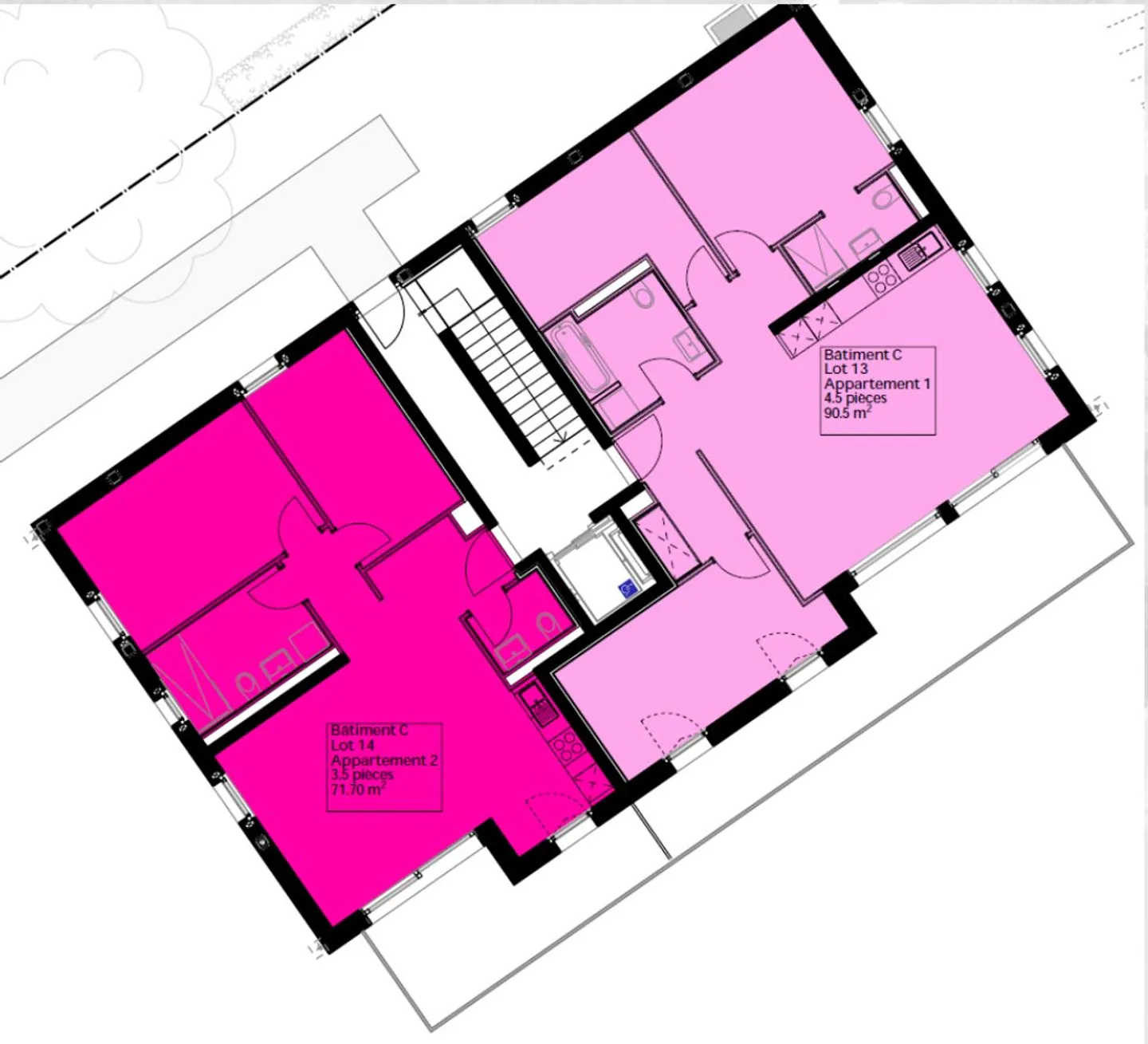
LETZTE PARZELLE !! NEU, 4,5 Zimmer im 1. Stock mit großem Balkon
LETZTE PARZELLE DIESER AKTION!
Wohnung mit 4,5 Zimmern im 1. Stock in einem im Bau befindlichen Projekt.
Diese Unterkunft umfasst eine offene Küche zum Wohnzimmer, 3 Schlafzimmer, zwei Badezimmer, darunter eine Dusche und eine Badewanne, eine Eingangshalle mit Wandschrank, einen großen Balkon-Loggia von etwa 21 m2, einen Parkplatz für ein Motorrad sowie einen Innenparkplatz gegen Aufpreis.
Parzelle 15: CHF 899'000.- + 45'000.- = 944'000.-
Warten Sie nicht länger, kontaktieren Sie uns sofort, um...
Immobiliendetails
- Verfügbar ab
- Nach Vereinbarung
- Zimmer
- 4.5
- Wohnfläche
- 103 m²
- Nutzfläche
- 103 m²
- Etage
- 1.



