Wohnung kaufen - Rue Des Pommiers 8b, 1962 Pont-de-la-Morge (Sion)
Warum Sie diese Immobilie lieben werden
Heller Südbalkon
Ruhiges, grünes Viertel
Nahe an Geschäften und Schulen
Besichtigung vereinbaren
Besichtigung mit Marion buchen
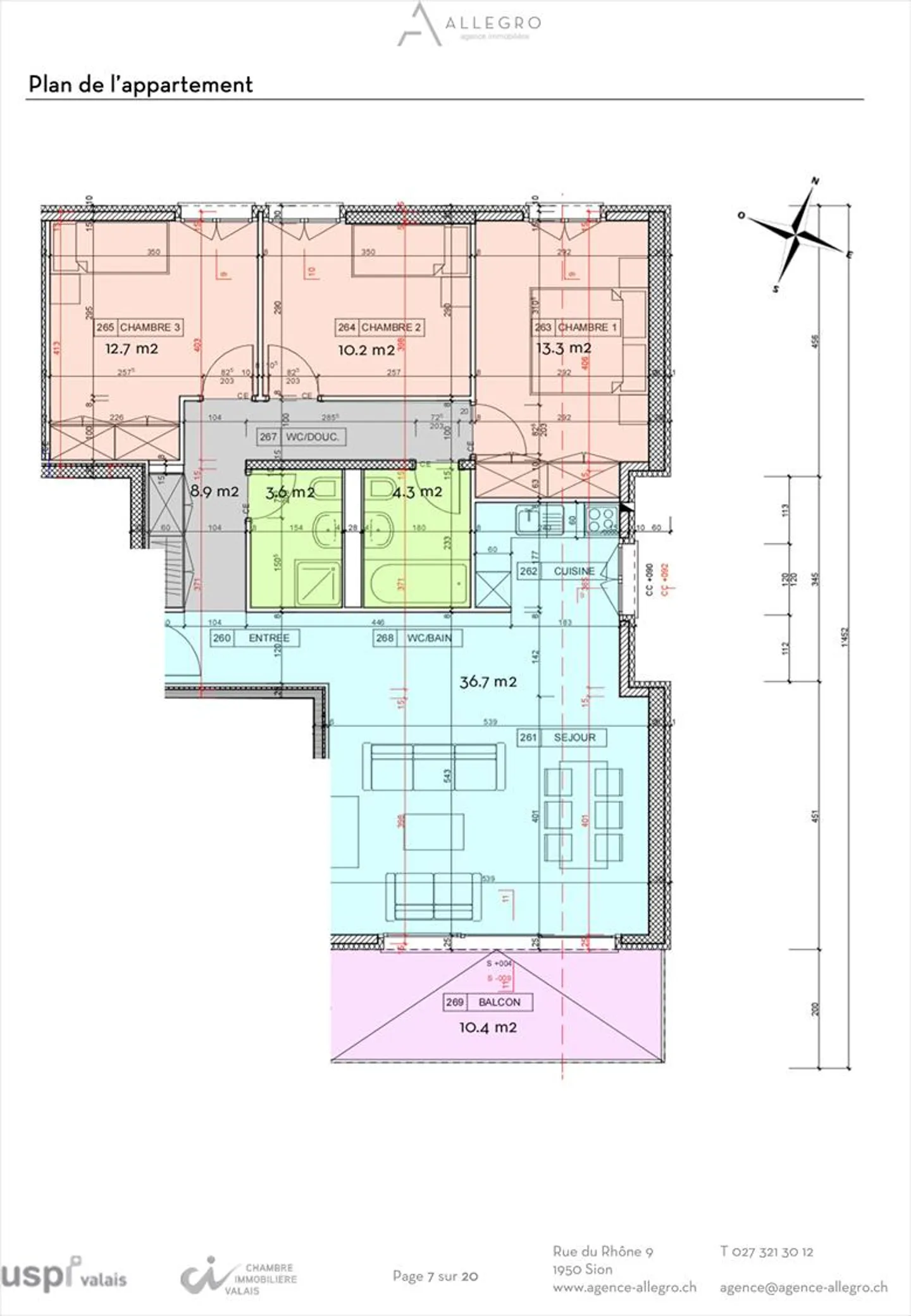
Pont-de-la-morge, schönes 4.5-zimmer-apartment mit 105 m2, balkon und 2 parkplätzen
Dieses wunderschöne 4.5-Zimmer-Apartment mit einer Fläche von 105 m2 befindet sich im 2. Stock des Gebäudes "Vergers du Soleil", das 2009 in der Rue des Pommiers 8B im charmanten Viertel von Pont-de-la-Morge (Gemeinde Sion) gebaut wurde.
Die Lage ist ideal an der Grenze zwischen Sion und Conthey: Sie profitieren von der unmittelbaren Nähe zu den Geschäften und der Autobahn, während Sie gleichzeitig eine ruhige, grüne und familiäre Umgebung genießen. Die Grundschule des Viertels sowie der öffentli...
Immobiliendetails
- Verfügbar ab
- Nach Vereinbarung
- Zimmer
- 4.5
- Baujahr
- 2009
- Wohnfläche
- 105 m²
- Etage
- 2.



