Wohnung kaufen - 8608 Bubikon
Warum Sie diese Immobilie lieben werden
Heller und offener Wohnraum
Gartensitzplatz zur Entspannung
Moderne Küche mit Annehmlichkeiten
Besichtigung vereinbaren
Besichtigung buchen
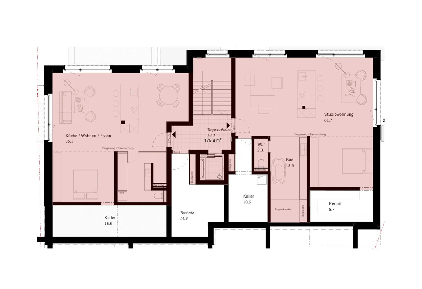
Gemütliche 1.5-zimmer neubauwohnung in bubikon
Diese charmante Wohnung mit 1.5 Zimmern wurde von einem Star Architekten entwickelt und befindet sich im schönen Kanton Zürich, in der idyllischen Region Bubikon. Das Wohnzimmer besticht durch seine Helligkeit und Offenheit, während die moderne und neue Küche sich perfekt für kulinarische Genüsse eignet. Mit einem Schlafzimmer, einem Badezimmer, einem Keller, einem Gartensitzplatz und einem Lift ausgestattet, bietet dieses Objekt zudem eine Tiefgarage für bequemes Parken. Die Umgebung punktet mi...
Immobiliendetails
- Verfügbar ab
- Nach Vereinbarung
- Zimmer
- 1.5
- Baujahr
- 2025
- Wohnfläche
- 74 m²
- Grundstücksfläche
- 47 m²
- Etage
- 1.



