Wohnung kaufen - Liebensberg 8, 8543 Bertschikon
Warum Sie diese Immobilie lieben werden
Atemberaubende Grünansichten
Individuell gestaltbare Innenräume
Direkter Liftzugang
Besichtigung vereinbaren
Besichtigung mit Huber buchen
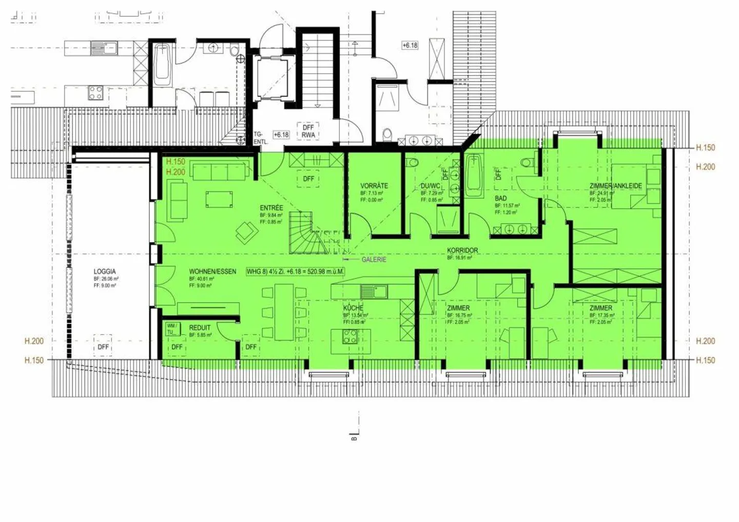
Neubau: eigentumswohnung (dg mit galerie, nr. 8) im ländlichen lieb...
Im ländlichen Liebensberg (8543 Bertschikon), zwischen Wiesendangen und Gachnang / Islikon oberhalb Gundetswil, entstehen diese 9 wunderschönen Neubau-Eigentumswohnungen. Wer die Ruhe und Aussicht ins Grüne schätzt und trotzdem innert Kürze die Städte Winterthur und Frauenfeld erreichen will, findet hier seinen Wohntraum. Der Baustart ist bereits erfolgt und die Wohnungen sind voraussichtlich im August 2026 bezugsbereit.
Es entstehen 9 individuell verschiedene Wohnungen in der Zimmerzahl 2.5 bis ...
Immobiliendetails
- Verfügbar ab
- Nach Vereinbarung
- Zimmer
- 4.5
- Baujahr
- 2026
- Wohnfläche
- 186 m²
- Etage
- 2.
- Geschosse
- 3




