Maisonette kaufen - Liebensberg 8, 8543 Bertschikon
Warum Sie diese Immobilie lieben werden
Ruhige ländliche Lage
Liftzugang zu Wohnungen
Private Keller inklusive
Besichtigung vereinbaren
Besichtigung mit Roland buchen
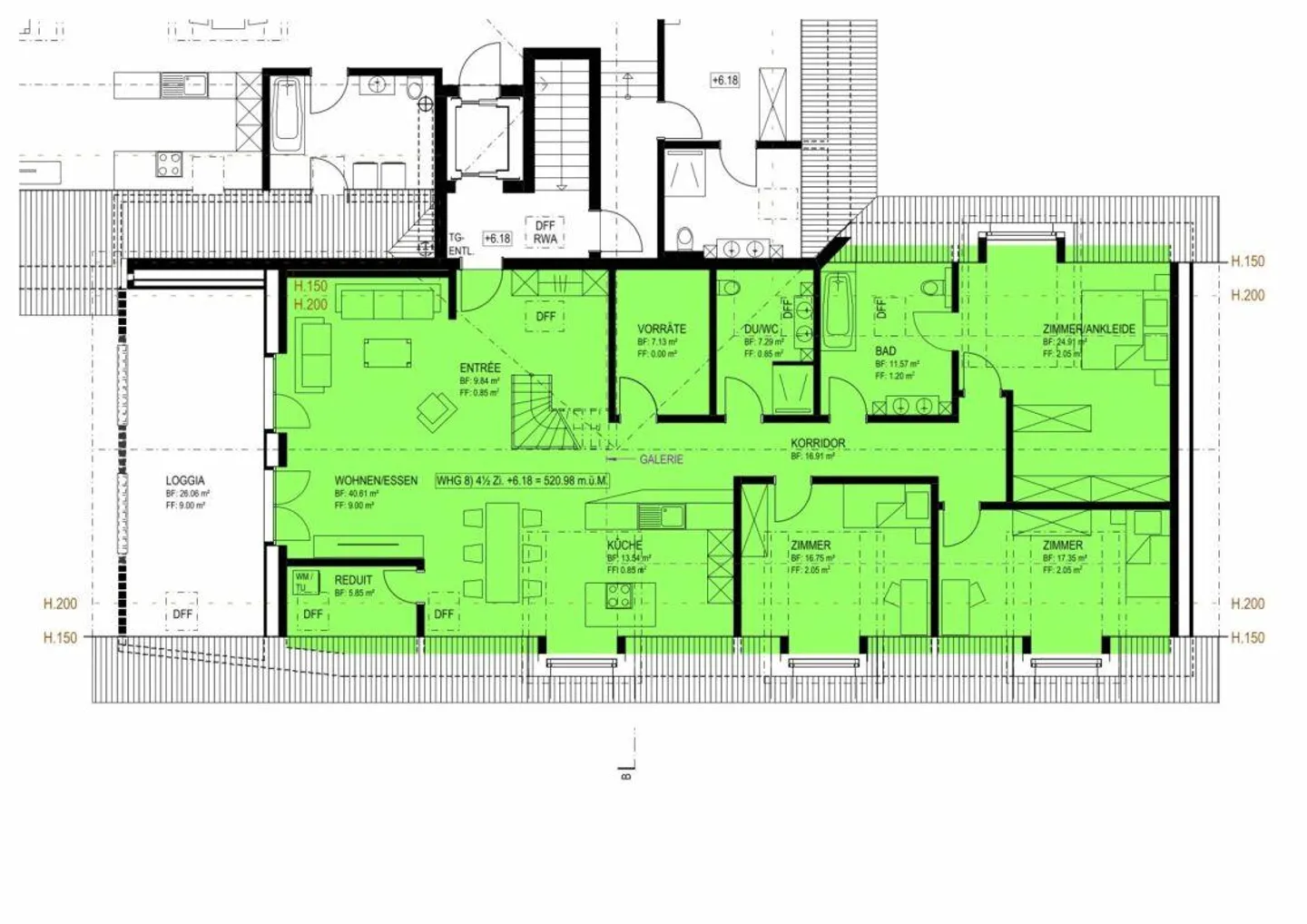
Neubau 4.5-Zimmer-Eigentumswohnung (DG mit Galerie, Nr. 8) im ländlichen Liebensberg (Gemeinde Wiesendangen)
Im ländlichen Liebensberg (8543 Bertschikon), zwischen Wiesendangen und Gachnang / Islikon oberhalb Gundetswil, entstehen diese 9 wunderschönen Neubau-Eigentumswohnungen angrenzend an die Landwirtschaftszone. Wer die Ruhe und Aussicht ins Grüne schätzt und trotzdem innert Kürze die Städte Winterthur und Frauenfeld erreichen will, findet hier seinen Wohntraum. Die Wohnungen befinden sich kurz vor dem Endausbau und sind voraussichtlich im September 2026 bezugsbereit.
Die Wohnungen sind mit dem Lift...
Immobiliendetails
- Verfügbar ab
- Nach Vereinbarung
- Zimmer
- 4.5
- Baujahr
- 2026
- Wohnfläche
- 186 m²
- Etage
- 2.
- Geschosse
- 3



