Wohnung kaufen - Chapfstrasse 8, 8625 Gossau ZH
Warum Sie diese Immobilie lieben werden
Geräumige nach Süden ausgerichtete Balkone
Hochwertige, anpassbare Ausstattungen
Nachhaltige Energielösungen
Besichtigung vereinbaren
Besichtigung mit Gino buchen
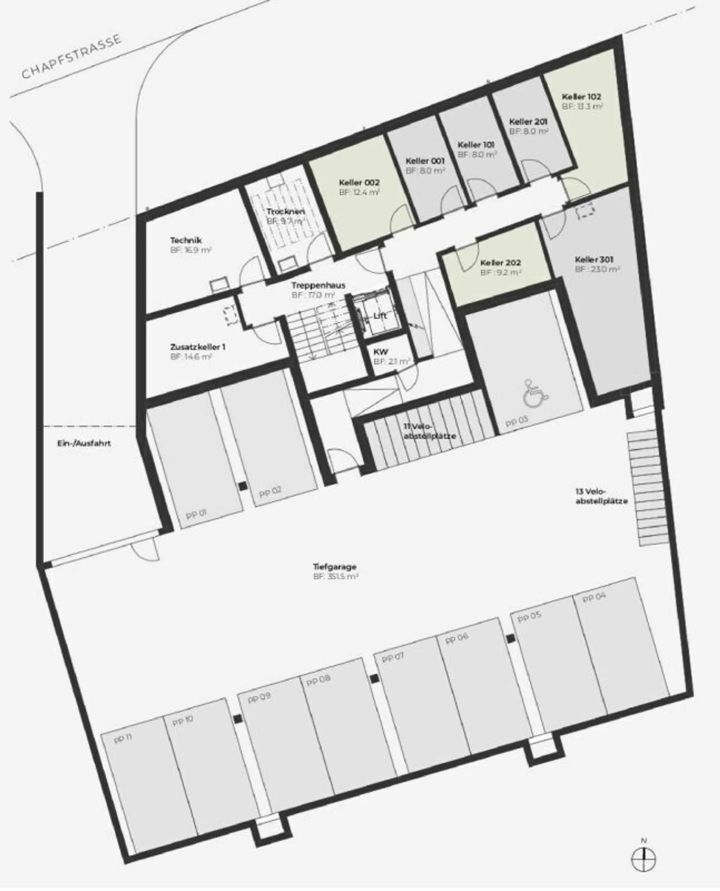
Gossau im Zürcher Oberland verbindet Beschaulichkeit mit Komfort im Alltag: Einkauf, Gastronomie, Kindergarten, Schule, Freibad und die Natur zwischen Greifen- und Pfäffikersee - alles ist in bequemer Nähe. Dazu kommt die gute Verkehrsanbindung an wichtige Zentren wie Wetzikon, Uster, Rapperswil-Jona und natürlich an Zürich.Mitten im Ort - in einem lebendigen, grünen Umfeld - entsteht Ihr zukünftiges Zuhause. Der Neubau ist charaktervoll, folgt keinen starren Formen und schafft damit ein Maximum...
Immobiliendetails
- Verfügbar ab
- Nach Vereinbarung
- Zimmer
- 3.5
- Baujahr
- 2026
- Wohnfläche
- 83 m²
- Balkonfläche
- 12 m²
- Etage
- 1.
- Geschosse
- 4



