Wohnung kaufen - Carl-Beck-Strasse 7a, 6210 Sursee
Warum Sie diese Immobilie lieben werden
Minergie® zertifiziertes Design
Geräumiger überdachter Balkon
Hochwertige Küchengeräte
Besichtigung vereinbaren
Besichtigung mit Di buchen
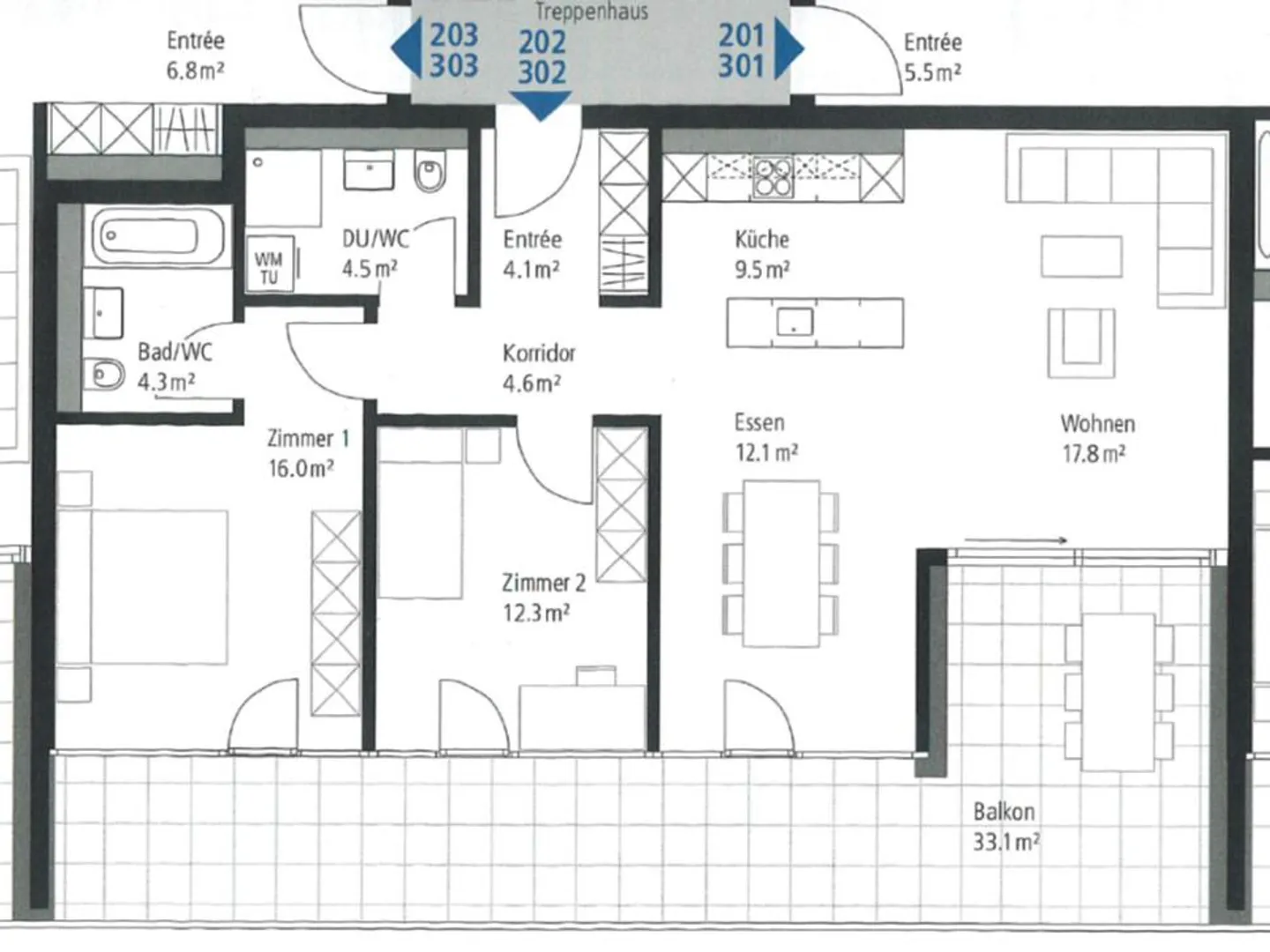
3½-zimmer-wohnoase in sursee lu
Die fantastische 3½-Zimmer-Wohnung wurde im 2020 fertiggestellt und verfügt über eine Minergie®-Zertifizierung (d.h. inkl. kontrollierte Wohnraumlüftung). Die Liegenschaft ist Bestandteil einer Stockwerkeigentümergemeinschaft und befindet sich in einem ruhigen, familienfreundlichen Wohnquartier, jedoch auch in der Nähe des Zentrums von Sursee sowie in Seenähe und Naherholung.
Geschosswohnung:
- 85.2 m² Nettowohnfläche mit moderner, lichtdurchfluteter Architektur
- Ausrichtung gegen Westen und somi...
Immobiliendetails
- Verfügbar ab
- Nach Vereinbarung
- Zimmer
- 3.5
- Baujahr
- 2020
- Wohnfläche
- 85.2 m²
- Etage
- 2.
- Geschosse
- 3



