Wohnung kaufen - 7173 Surrein
Warum Sie diese Immobilie lieben werden
Renoviert im Jahr 2024
Privater Balkon mit Aussicht
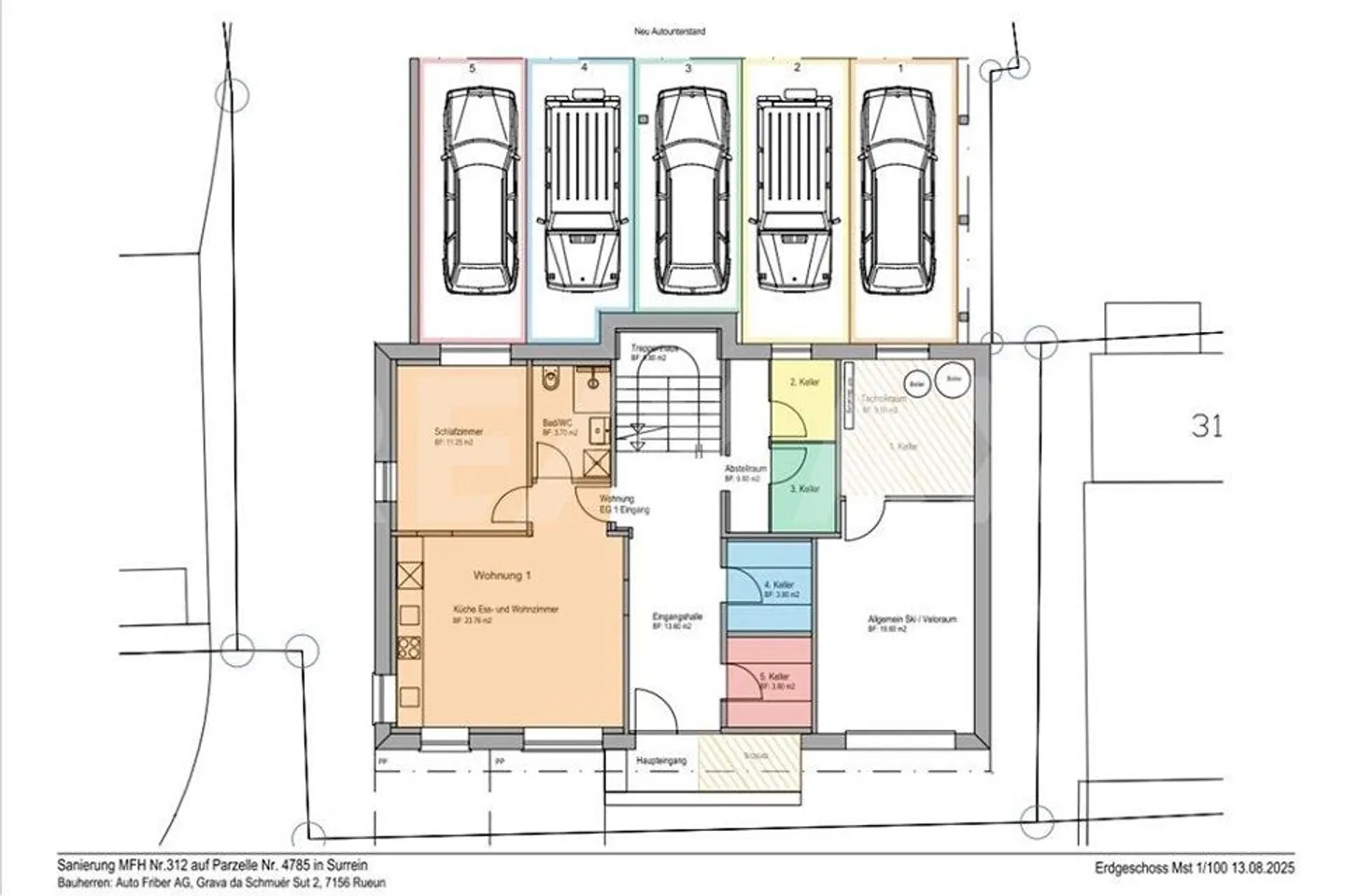
Geräumiger Ski- und Veloraum
Besichtigung vereinbaren
Besichtigung mit Renato buchen
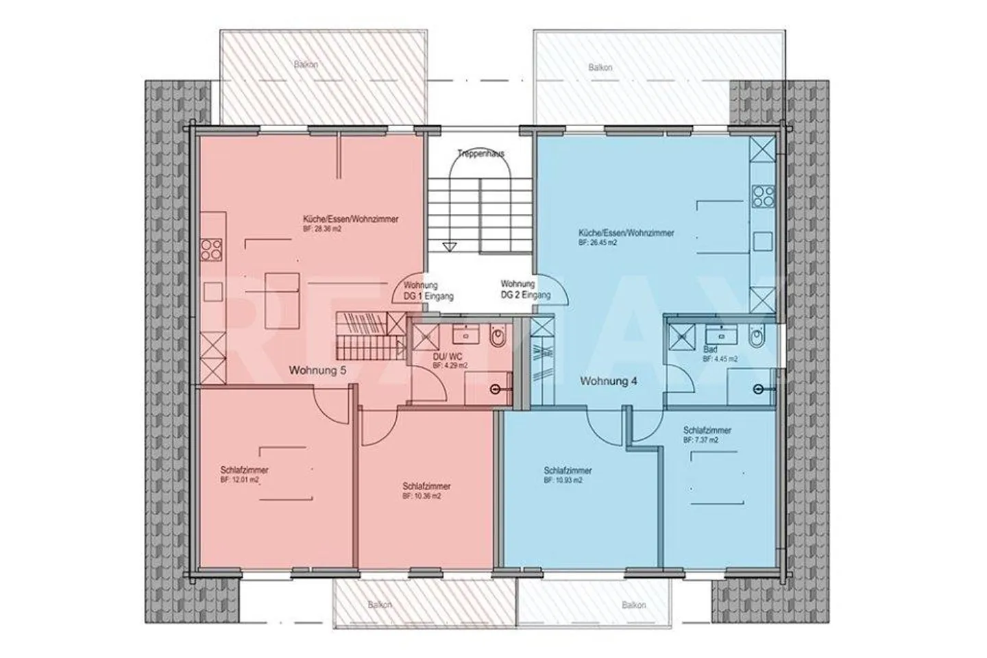
3½ Zimmer-Ferienwohnung - Dachwohnung Nr. 4
Entdecken Sie diese charmante, renovierte Ferienwohnung in Surrein (Sumvitg), im Herzen der malerischen Surselva in Graubünden. Diese Ferienimmobilie liegt in der idyllischen Via Reits und bietet eine einzigartige Gelegenheit, sich in einer ruhigen und naturnahen Umgebung niederzulassen. Die Wohnung wurde im 2024 renoviert und befindet sich im Dachgeschoss eines kernsaniertes Gebäudes.
Mit einer Wohnfläche von 49.2 Quadratmetern, verfügt diese lichtdurchflutete Ferienwohnung über 2 gemütliche Sc...
Immobiliendetails
- Verfügbar ab
- Nach Vereinbarung
- Zimmer
- 3
- Baujahr
- 2024
- Wohnfläche
- 49 m²



