Maisonette kaufen - 7000 Chur
Warum Sie diese Immobilie lieben werden
Atemberaubender Stadtblick
Moderne hochwertige Ausstattung
Überdachter Parkplatz für 3 Autos
Besichtigung vereinbaren
Besichtigung mit Marijana buchen
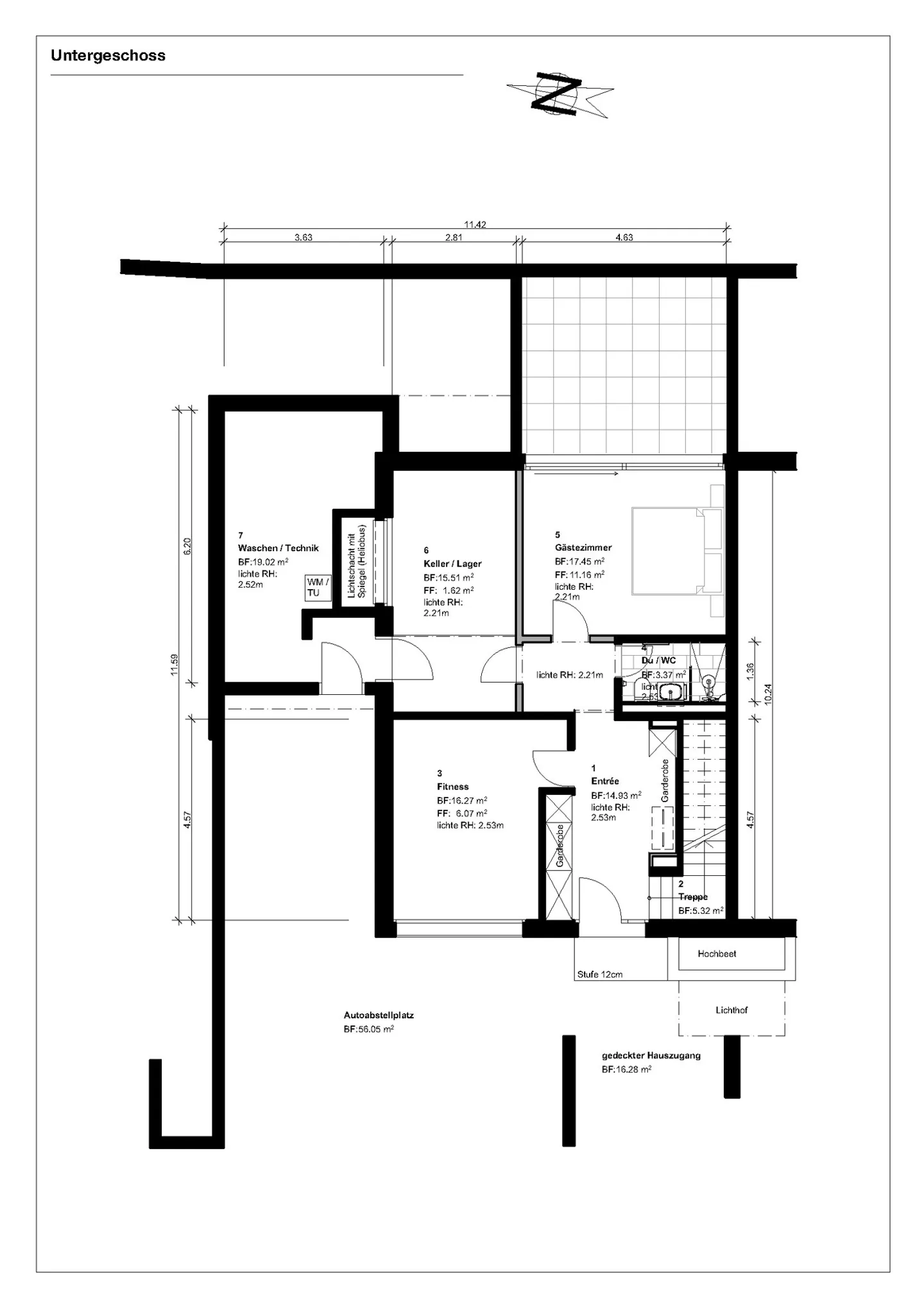
Wohnkomfort an top-lage
Ein Traumdomizil in Churs begehrtester Lage! Diese Doppelhaushälfte mit 6.5 Zimmern bietet nicht nur reichlich Platz für Ihre Familie, sondern auch einen atemberaubenden Blick über die Stadt. Die grosszügige Wohnfläche und die zusätzlichen Nebenräume erfüllen zahlreiche Wohnwünsche.
Im Inneren erwartet Sie eine hochwertige, moderne Ausstattung, die perfekt auf die Bedürfnisse Ihrer Familie zugeschnitten ist. Mit insgesamt 5 Schlafzimmern und 3 Badezimmern ist genug Platz für jeden.
Dieses Juwe...
Immobiliendetails
- Verfügbar ab
- Nach Vereinbarung
- Zimmer
- 6.5
- Baujahr
- 2012
- Wohnfläche
- 220 m²
- Grundstücksfläche
- 248 m²




