Penthouse kaufen - 6984 Pura
Warum Sie diese Immobilie lieben werden
Geräumiger offener Wohnbereich
Moderne Küche mit Geräten
Atemberaubende Panoramaaussicht
Besichtigung vereinbaren
Besichtigung buchen
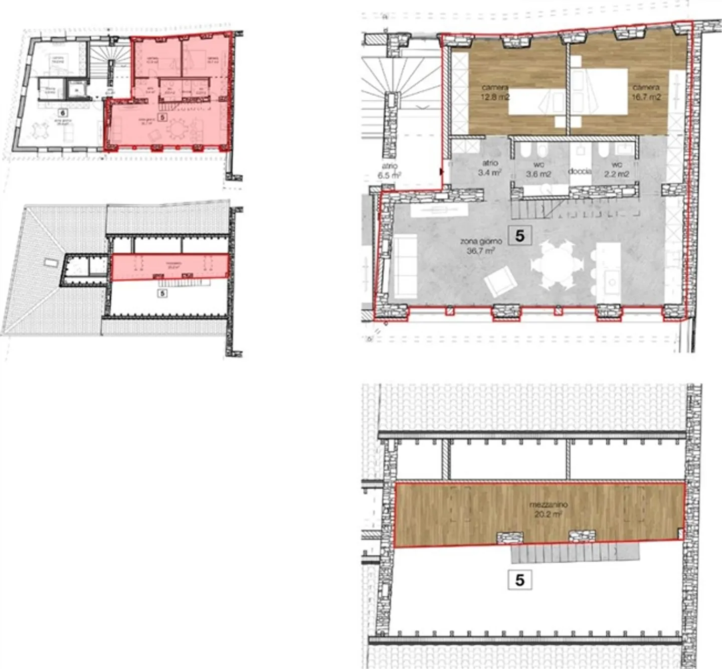
Schöne renovierte 2-s.zimmer-dachgeschosswohnung mit mezzazin - erstwohnsitz -bellissimo attico di 3.5 loc ristrutturato con mezzanino
Im Dorf Pura (Malcantone) nur 10 km von Lugano entfernt, finden Sie diese komfortable 96,30 m² große Dachgeschosswohnung mit mezzazin, die sich im eines komplett renovierten Gebäude , ein Projekt, das Stil und Funktionalität miteinander verbindet.Die Wohnung ist geräumig und hell mit 2 Schlafzimmern, 2 Badezimmern mit moderner Dusche, und einem geräumigen offenen Wohnzimmer. Die offene Küche ist mit modernen Geräten ausgestattet. Holzböden in allen Räumen schaffen ein warmes und gemütliches Ambi...
Immobiliendetails
- Verfügbar ab
- Nach Vereinbarung
- Zimmer
- 3.5
- Wohnfläche
- 96 m²
- Etage
- 3.



