Wohnung kaufen - 6952 Canobbio
Warum Sie diese Immobilie lieben werden
Ideal für Lagerzwecke
Einfacher Zugang für Transport
Strategische Lage nahe Annehmlichkeiten
Besichtigung vereinbaren
Besichtigung mit Stabile buchen
Strategisches Gewerbeobjekt von 400 m² in Cornaredo
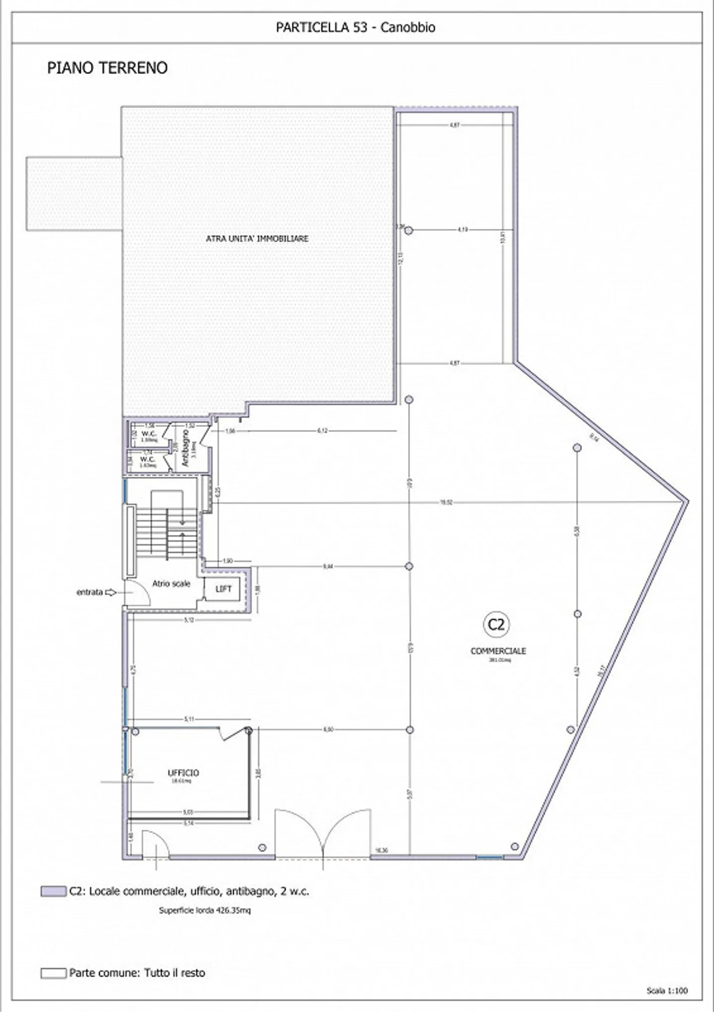
In Canobbio, in einer ebenerdigen und gut erschlossenen Zone, bieten wir ein Gewerbeobjekt von ca. 400 m² Bruttogeschoßfläche im Erdgeschoss eines Wohnhauses aus den frühen 90er Jahren mit 22 Wohnungen, gut gepflegt und mit Aufzug ausgestattet.
PREIS NICHT VERHANDELBAR!
Ideal für die Nutzung als Lager. Derzeit ist im Objekt ein Reifenhandel mit Vertrag für weitere 2 Jahre bis Mai 2027 untergebracht.
Das Objekt ist wie folgt aufgeteilt:
Bequemer Eingang mit einem großen Tor, ideal für die Einfahr...
Immobiliendetails
- Verfügbar ab
- 17.09.2025
- Zimmer
- 2.5
- Baujahr
- 1990
- Wohnfläche
- 380 m²
- Nutzfläche
- 400 m²
- Etage
- EG


