Wohnung kaufen - 6952 Canobbio
Warum Sie diese Immobilie lieben werden
Ideal für Lagerzwecke
Einfacher Zugang für Transport
Strategische Lage bei Lugano
Besichtigung vereinbaren
Besichtigung mit Stabile buchen
Geräumiger 2.5-Raum-Gewerbeimmobilie in Cornaredo
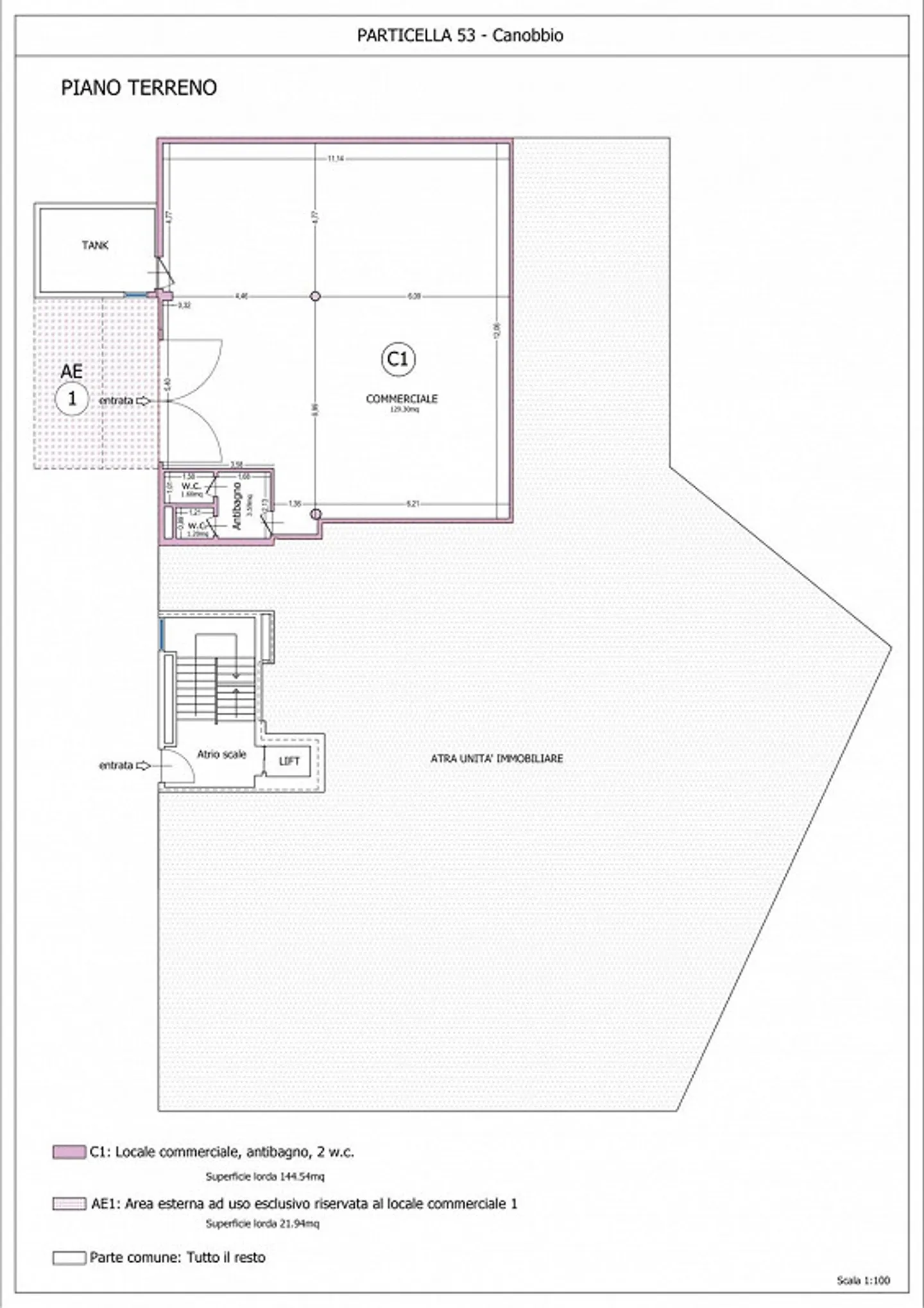
In Canobbio, in einer ebener und gut erschlossenen Gegend, bieten wir eine große Gewerbeimmobilie von ca. 135 m² Bruttogesamtwohnfläche im Erdgeschoss eines Gebäudes aus den frühen 90er Jahren mit 22 Einheiten, gut gepflegt und mit Aufzug ausgestattet.
Ideal für die Nutzung als Lager.
Die Immobilie ist wie folgt aufgeteilt:
Bequemer Eingang mit einem großen Tor, perfekt für die Einfahrt von hohen Transportern, und einem Toilettenraum, derzeit ist die Immobilie vermietet.
Die Heizung mit Heizöl m...
Immobiliendetails
- Verfügbar ab
- 17.09.2025
- Zimmer
- 2.5
- Baujahr
- 1990
- Wohnfläche
- 130 m²
- Nutzfläche
- 135 m²
- Etage
- EG


