1 / 10

Wohnung kaufen - Chemin Du Milieu 69, 1920 Martigny

4.5 Zimmer • 115 m² • 2. Etage
CHF 594’400.-
CHF 5’169 m²

Warum Sie diese Immobilie lieben werden

Geräumiger Wintergarten von 12,9 m²

Zugang zum Garten und zur Terrasse

Ruhige, grüne Umgebung

Besichtigung vereinbaren

Besichtigung mit Pierre-Alain buchen

Pierre-Alain Castro
C-Service Promotions Sàrl

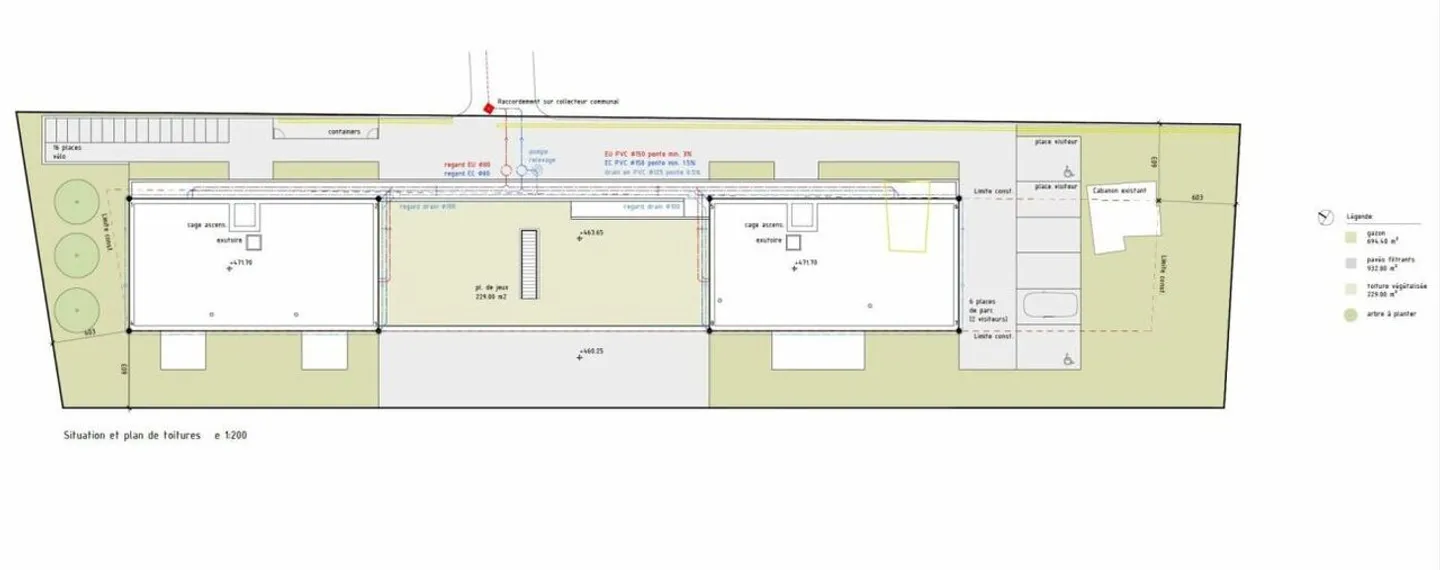
Neue Förderung von 16 Wohnungen in Martigny, nahe dem Zentrum

Zu verkaufen in einer neuen Aktion mit 16 Wohnungen, prächtiges 4,5-Zimmer-Penthouse mit einem 12,9 m² großen Wintergarten

Die Lage ermöglicht es Ihnen, das umliegende Grün und die umliegende Ruhe zu genießen.

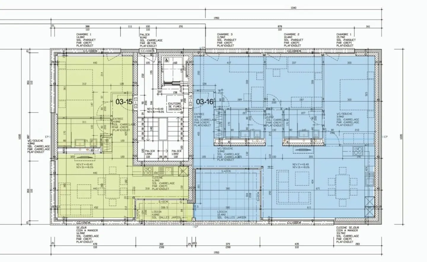
Diese 4,5-Zimmer-Wohnung von 115 m2 gewichtet in einem Penthouse setzt sich wie folgt zusammen:

Eingangshalle mit Einbauschrank Offene Küche Wintergarten von 12,9m2 Wohnzimmer mit Zugang zum Garten und zur Terrasse 2 Schlafzimmer Ba...

Immobiliendetails

Verfügbar ab
Nach Vereinbarung
Zimmer
4.5
Badezimmer
2
Parkplätze im Freien
1
Baujahr
2025
Wohnfläche
115
Etage
2.
Geschosse
3

Eigenschaften

Balkon
Parkplätze

Agentur

C-Service Promotions Sàrl
C-Service Promotions Sàrl
Adresse:Avenue de la Gare 36, 1870, Monthey
(19 reviews)
Ref: b694f545-a8f5-11f0-89d7-069ae14c7a06
Online seit
14/10/2025
vor 1 Tag

Standort

Chemin Du Milieu 69, 1920 Martigny