Wohnung kaufen - 6874 Castel San Pietro
Warum Sie diese Immobilie lieben werden
Geräumige Terrasse zum Garten
Helles offenes Wohnkonzept
Hochwertige moderne Ausstattungen
Besichtigung vereinbaren
Besichtigung buchen
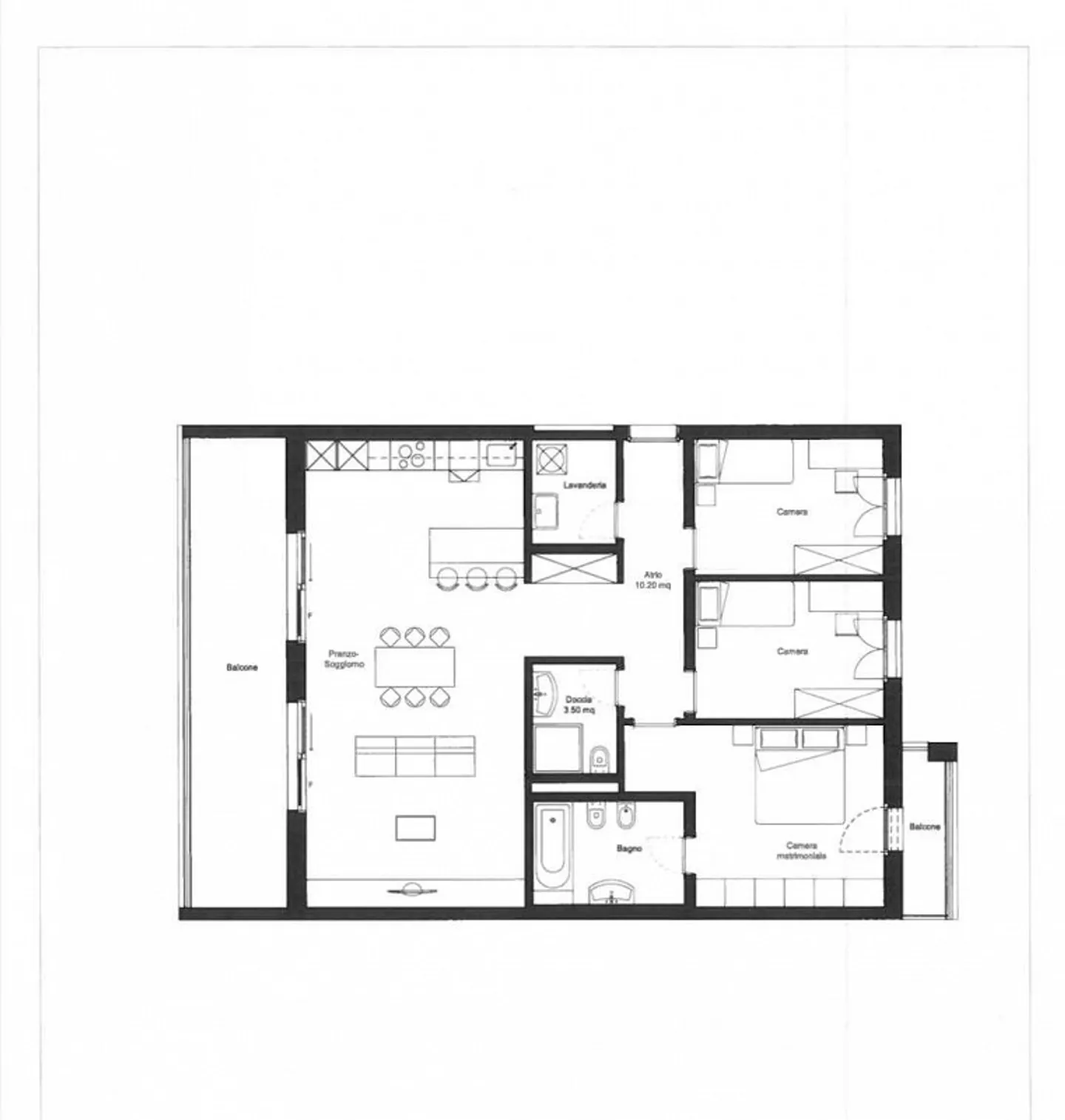
Modernes Apartment mit großer Terrasse mit Blick auf den Garten
Castel San Pietro, eine der begehrtesten Lagen im Mendrisiotto für die hervorragende Lebensqualität, bieten wir dieses raffinierte Apartment zum Verkauf an, das sich in einer neu erbauten Residenz befindet.
Die Residenz zeichnet sich durch moderne und lineare Architektur aus und ist von gepflegten Grünflächen umgeben, die ihren Charme und die Wohnqualität unterstreichen. Der ruhige und harmonische Kontext garantiert ein perfektes Gleichgewicht zwischen Privatsphäre und Kontakt zur Natur und schaf...
Immobiliendetails
- Verfügbar ab
- Nach Vereinbarung
- Zimmer
- 4.5
- Wohnfläche
- 122 m²
- Etage
- 1.



