Wohnung kaufen - 6850 Mendrisio
Warum Sie diese Immobilie lieben werden
Helle offene Wohnfläche
Elternsuite im Obergeschoss
Praktische Lage nahe Dienstleistungen
Besichtigung vereinbaren
Besichtigung buchen
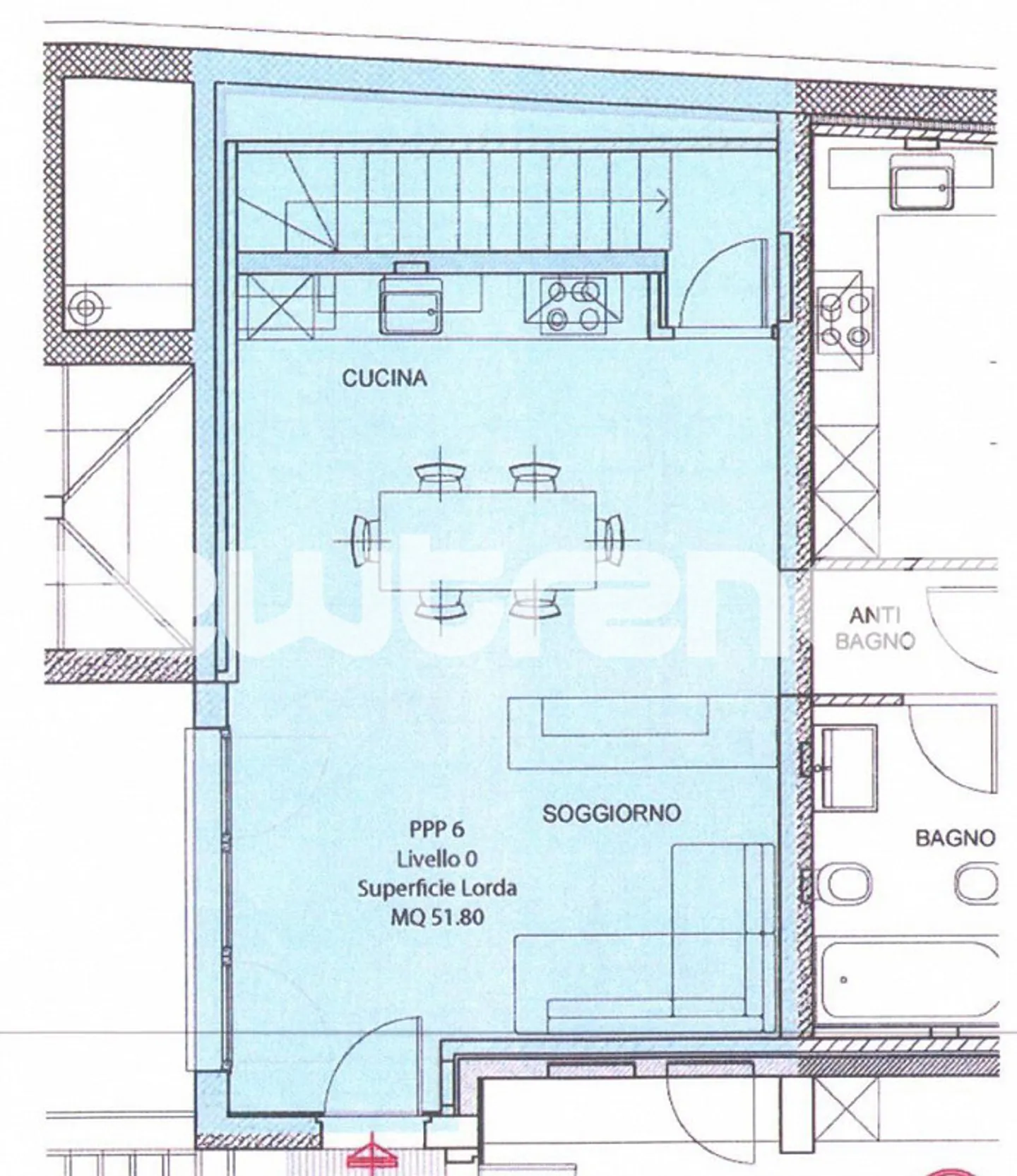
Mendrisio – Zu verkaufen geräumiges Duplex mit 2,5 Zimmern von 135 m²
In einer günstigen und gut angebundenen Lage, nur wenige Schritte von allen wichtigen Dienstleistungen und öffentlichen Verkehrsanbindungen entfernt, bieten wir zum Verkauf eine geräumige 2,5-Zimmer-Duplexwohnung mit einer Wohnfläche von ca. 135 m² an.
Die Immobilie erstreckt sich über zwei Ebenen und bietet großzügige und gut verteilte Räume.
Im Erdgeschoss befindet sich der Wohnbereich, der aus einem Eingang und einem Wohnzimmer mit Essbereich und offener Küche besteht, die Helligkeit und Funkt...
Immobiliendetails
- Verfügbar ab
- Nach Vereinbarung
- Zimmer
- 2.5
- Baujahr
- 2012
- Etage
- 2.
- Geschosse
- 2



