Wohnung kaufen - 6814 Cadempino
Warum Sie diese Immobilie lieben werden
Geräumiger Privatgarten
Grosse Terrasse zum Entspannen
Energieeffiziente Merkmale
Besichtigung vereinbaren
Besichtigung mit The buchen
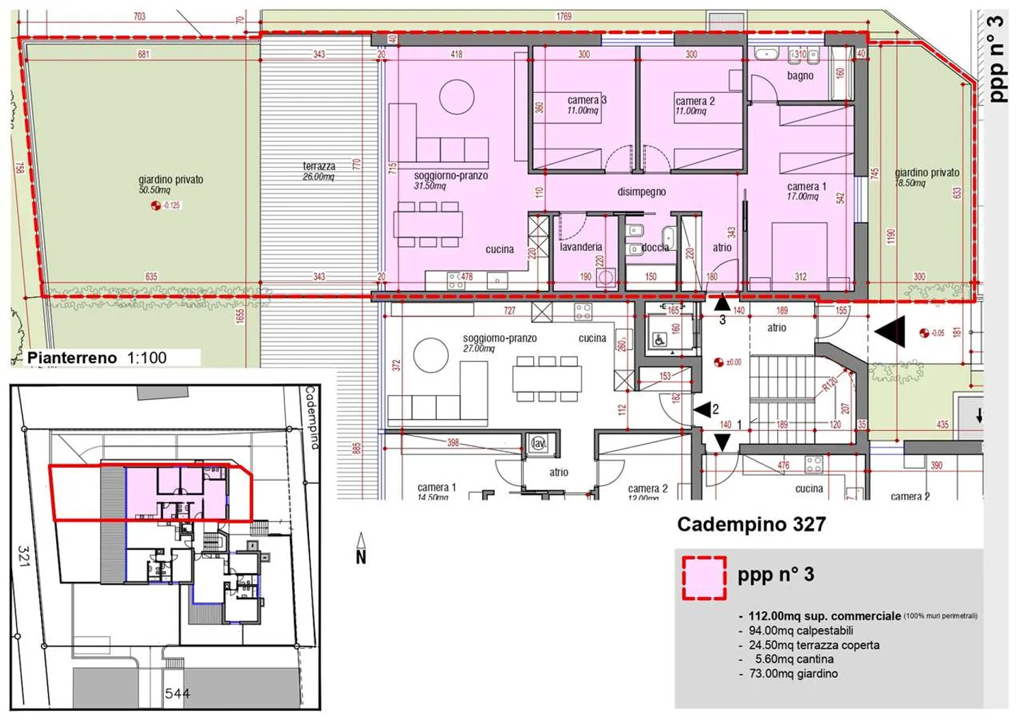
Suchen Sie eine moderne Wohnung mit einer großen Veranda und privatem Garten in Cadempino, in einer ruhigen Gegend?
Wir bieten Ihnen einen neuen Komplex im Bau, bestehend aus 6 Wohnungen, die mit einem Aufzug bedient werden und mit großen Veranden und privaten Gärten ausgestattet sind. Sie befindet sich in einer komfortablen Umgebung, bietet Ruhe und einen einfachen Zugang zu den Dienstleistungen.
Die Wohnung, die sich im Erdgeschoss befindet, ist individuell gestaltbar und umfasst:
- Großer Wohnbe...
Immobiliendetails
- Verfügbar ab
- Nach Vereinbarung
- Zimmer
- 5
- Badezimmer
- 2
- Baujahr
- 2026
- Wohnfläche
- 112 m²
- Gartenfläche
- 73 m²



