Wohnung kaufen - Via Pozzaracchia 6, 6648 Minusio
Warum Sie diese Immobilie lieben werden
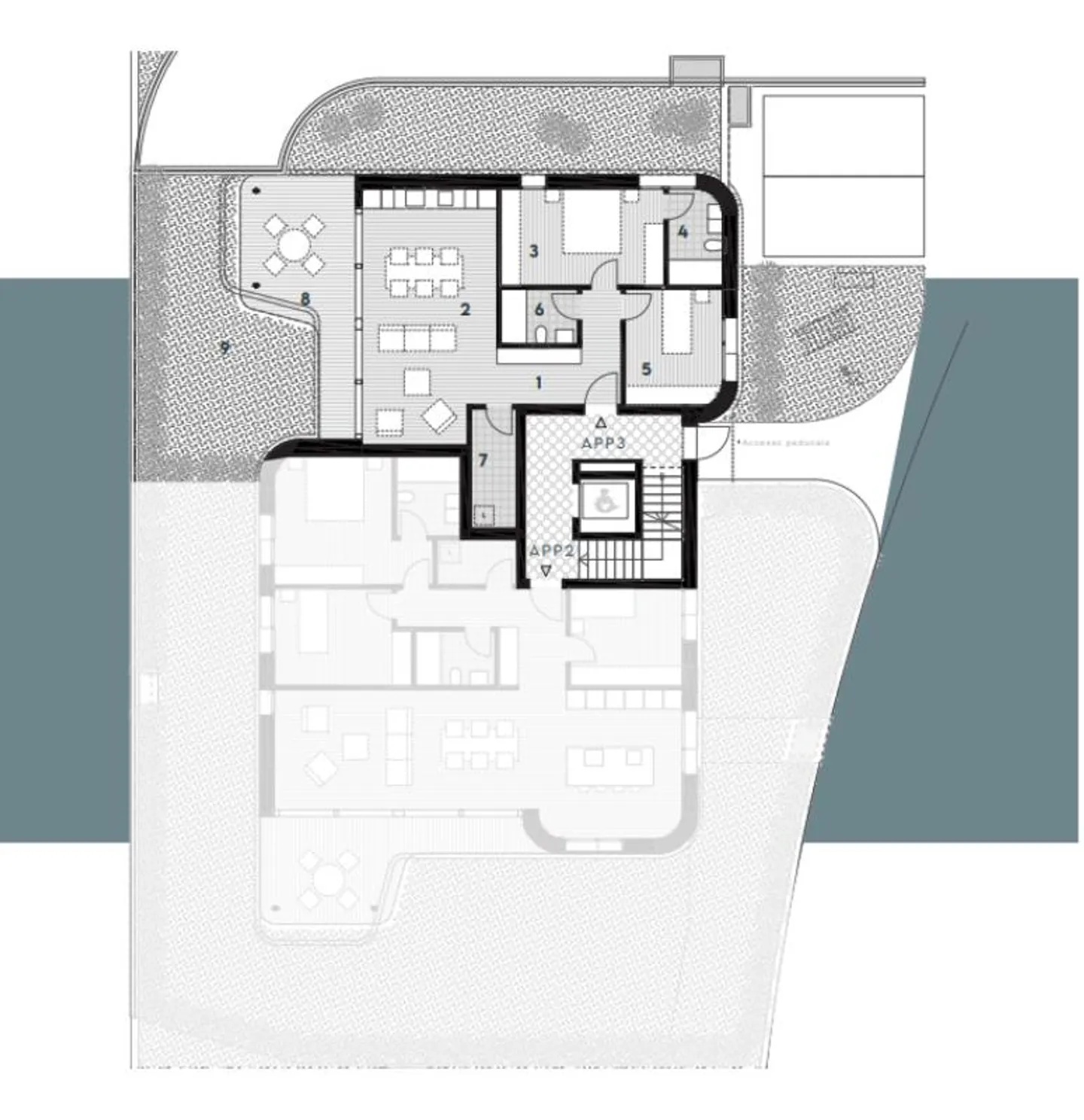
Privater Garten von 68 m²
Heller Wohnbereich
Anpassbare Ausstattungen verfügbar
Besichtigung vereinbaren
Besichtigung mit Sebastiano buchen
ZU VERKAUFEN IN MINUSIO - 3.5 ZIMMER WOHNUNG IN NEUBAU MIT PRIVATGARTEN
Umgeben von Grün, nur wenige Schritte von allen Dienstleistungen entfernt: das ist die RESIDENZA VALENTINA. Die im nördlichen Wohngebiet der Gemeinde Minusio gelegene Anlage umfasst 6 Wohnungen, die sich über vier Etagen verteilen. Das Volumen der modernen und sanften Formen erinnert an Elemente der zeitgenössischen Architektur. Die Wohnbereiche der Wohnungen in der Residenz sind so gestaltet, dass sie die maximale Sonneneins...
Immobiliendetails
- Verfügbar ab
- Nach Vereinbarung
- Zimmer
- 3.5
- Baujahr
- 2024
- Wohnfläche
- 86 m²
- Gartenfläche
- 68 m²
- Geschosse
- 1



