Wohnung kaufen - Hafenrainstrasse 6, 4104 Oberwil BL
Warum Sie diese Immobilie lieben werden
Barrierefreier Zugang
Sonniger Privatgarten
Luxuriöse Walk-In-Dusche
Besichtigung vereinbaren
Besichtigung buchen
«attraktive 2.5-zi.-gartenwohnung - barrierefreies wohnen mit zukunft»
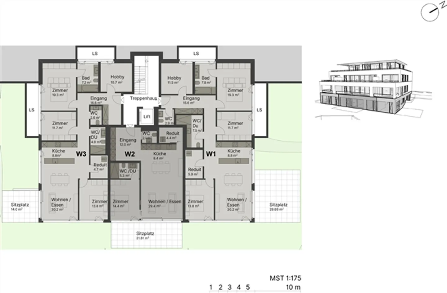
Entdecken Sie Ihre Traumwohnung: Attraktive 2.5-Zimmer-Gartenwohnung in der Hafenrainstrasse 6, Oberwil
Willkommen in dieser modernen Neubauwohnung, die 2027 fertiggestellt wird! Mit 76 m² Wohnfläche bietet diese 2.5-Zimmer-Gartenwohnung alles, was Sie für ein komfortables und stilvolles Leben in einem ruhigen, familienfreundlichen Umfeld in der Nähe von Basel benötigen.
Highlights der Wohnung:
* Barrierefreier Zugang: Mit einem Aufzug für maximalen Komfort von Anfang an.
* Offene Wohnküche: Genieße...
Immobiliendetails
- Verfügbar ab
- Nach Vereinbarung
- Zimmer
- 2.5
- Baujahr
- 2027
- Grundstücksfläche
- 1525 m²



