Dachgeschosswohnung kaufen - Bernstrasse 48, 3125 Toffen
Warum Sie diese Immobilie lieben werden
MINERGIE® Energiestandard
Für alle Altersgruppen zugänglich
Balkon oder Gartenplatz
Besichtigung vereinbaren
Besichtigung buchen
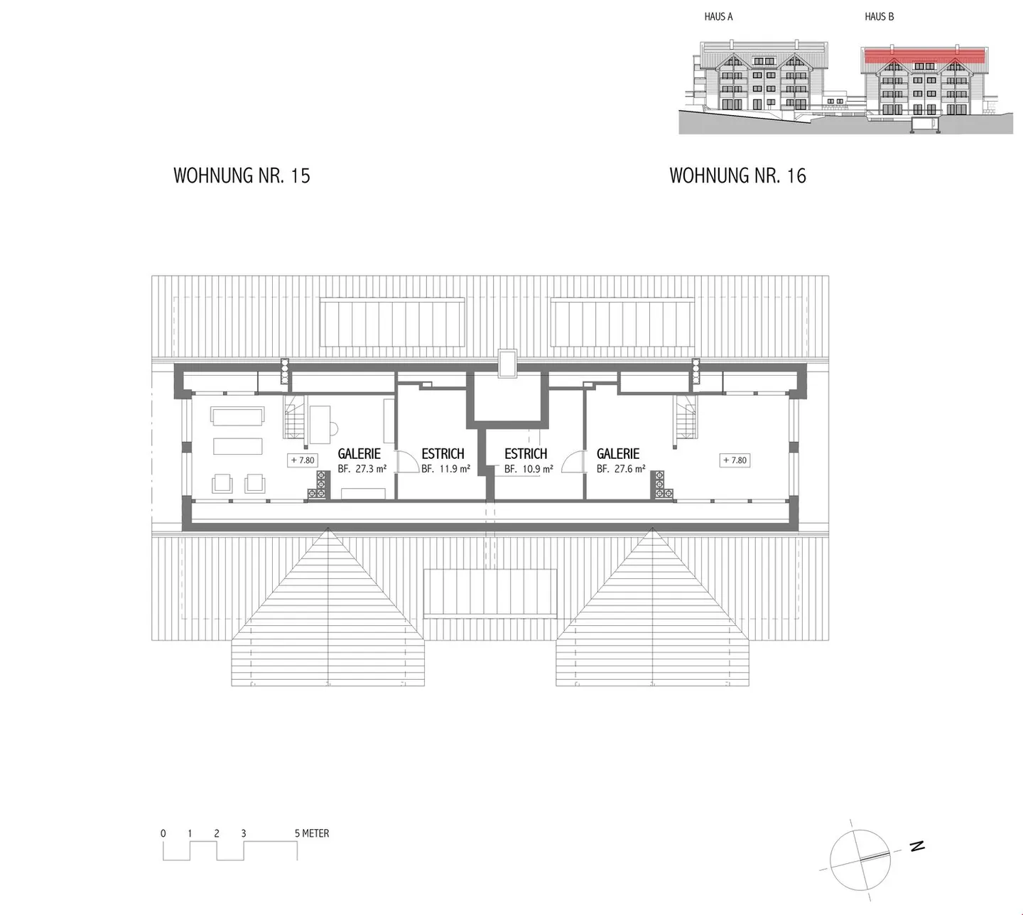
Neubau 4 1/2-Zi-Whg. (Nr. 16) mit Galerie - Bernstrasse 48 in Toffen
Wenn Wohnträume wahr werden... hier könnten Sie schon bald einziehen...Die letzte noch verfügbare Wohnung
N E U B A U P R O J E K T: Wohneigentum in Toffen - Gürbetal Sie möchten Wohneigentum erwerben in einem Dorf, das hohe Lebensqualität und eine gute Anbindung an den öffentlichen Verkehr bietet? - Dann lesen Sie weiter: Die beiden Mehrfamilienhäuser an der Bernstrasse befinden sich an erhöhter Lage in Toffen. Es werden 16 Eigentumswohnungenmit hoher Wohnqualität erstellt. Die Wohnungen sind al...
Immobiliendetails
- Verfügbar ab
- Nach Vereinbarung
- Zimmer
- 4.5
- Baujahr
- 2023
- Wohnfläche
- 125 m²
- Nutzfläche
- 145 m²
- Etage
- 2.



