1 / 13

Penthouse kaufen - Hauptstrasse 45b, 8261 Hemishofen

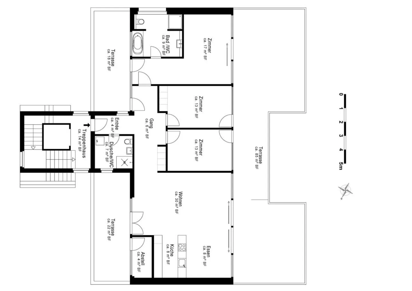
4.5 Zimmer • 119 m² • 2. Etage
CHF 1’090’000.-
CHF 9’160 m²

Warum Sie diese Immobilie lieben werden

Spektakuläre Panoramaaussicht

Geräumige, sonnige Terrassen

Moderne Bäder mit Luxusausstattung

Besichtigung vereinbaren

Besichtigung mit Valdrin buchen

Valdrin Olluri
Raiffeisen Immo AG

Zwischen himmel und horizont - wohnen mit aussicht

Heimishofen liegt idyllisch im Kanton Schaffhausen und bietet seinen Bewohnerinnen und Bewohnern ein ruhiges, ländliches Umfeld mit guter Erreichbarkeit. Der nahe gelegene öffentliche Verkehr sowie die intakte Dorfgemeinschaft machen den Ort besonders lebenswert. Die Umgebung überzeugt durch eine herrliche Besonnung und ein naturnahes Wohngefühl mit viel Freiraum.

Im zweiten Obergeschoss eines gepflegten Mehrfamilienhauses aus dem Jahr 2016 erwartet Sie diese neuwertige 4.5-Zimmer-Attikawohnung....

Immobiliendetails

Verfügbar ab
Nach Vereinbarung
Zimmer
4.5
Baujahr
2016
Renovierungsjahr
2023
Wohnfläche
119
Etage
2.

Interessante Orte in der Nähe

Läden - 3 km
Kindergarten - 3.8 km
Primarschule - 3.8 km
Oberstufenschule - 3.5 km

Agentur

Raiffeisen Immo AG
Adresse:Thurtalstrasse 4, 8450, Andelfingen
Ref: VI-00021206-1
Online seit
26/09/2025
vor 24 Tagen

Standort

Hauptstrasse 45b, 8261 Hemishofen