Wohnung kaufen - Oberdorf 42, 8222 Beringen
Warum Sie diese Immobilie lieben werden
Atemberaubende Ausblicke auf den Klettgau
Barrierefreier Zugang mit Lift
Geräumige Balkone bis 23 m²
Besichtigung vereinbaren
Besichtigung mit Andreas buchen
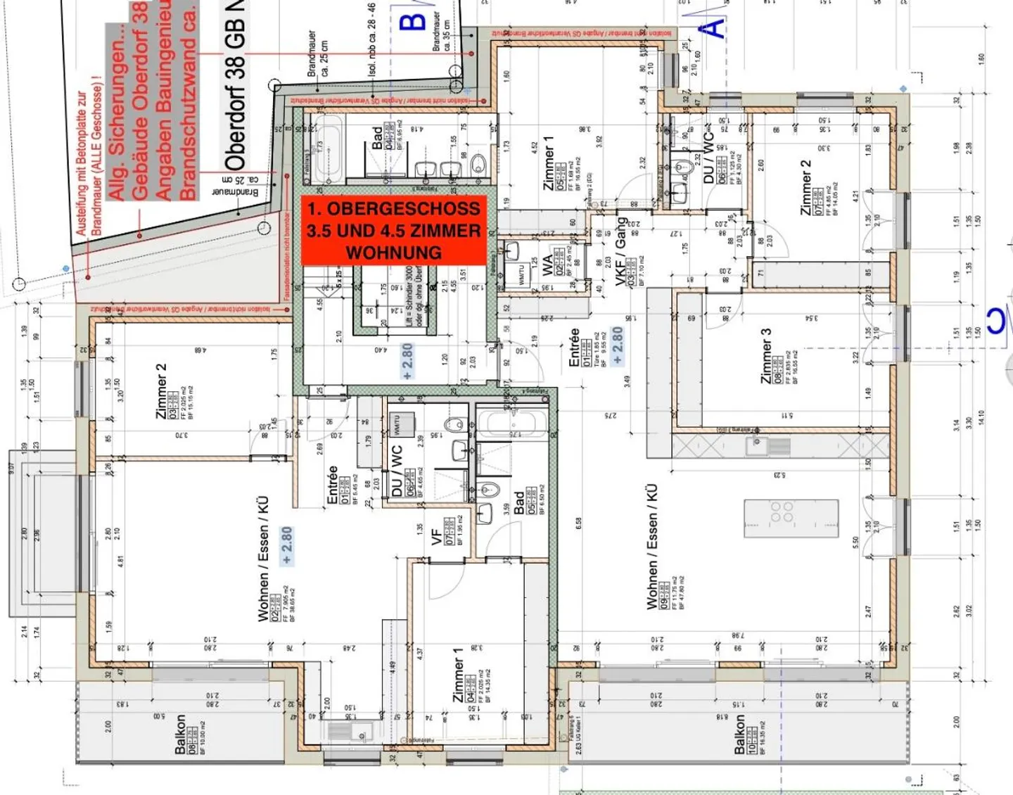
Moderne 3.5-zimmer-wohnung mit balkon und grossem sitzplatz in beringen
Wohnen mit Aussicht – 7 neue Eigentumswohnungen in 8222 Beringen
Neubau | 2.5 bis 5.5 Zimmer | 90–135 m² | Lift | Balkon/Terrasse | Baubeginn 2024
Ankommen, aufatmen, geniessen. In Beringen, nur wenige Minuten von Schaffhausen entfernt, entsteht ein modernes Mehrfamilienhaus mit 7 Eigentumswohnungen, die durch Qualität, Komfort und Weitsicht überzeugen.
Ob praktische 2.5-Zimmer-Wohnung oder grosszügige 5.5-Zimmer-Maisonette – hier finden Sie Ihr neues Zuhause.
Das erwartet Sie:
* 2.5 bis 5.5 Zimmer m...
Immobiliendetails
- Verfügbar ab
- Nach Vereinbarung
- Zimmer
- 3.5
- Baujahr
- 2025
- Wohnfläche
- 90 m²
- Nutzfläche
- 90 m²
- Gebäudevolumen
- 295 m³
- Etage
- 1.



