Wohnung kaufen - 3944 Unterbäch VS
Warum Sie diese Immobilie lieben werden
Geräumiger offener Wohnbereich
Zwei großzügige Balkone
Einzigartige Wanderwege in der Nähe
Besichtigung vereinbaren
Besichtigung mit Silvio buchen
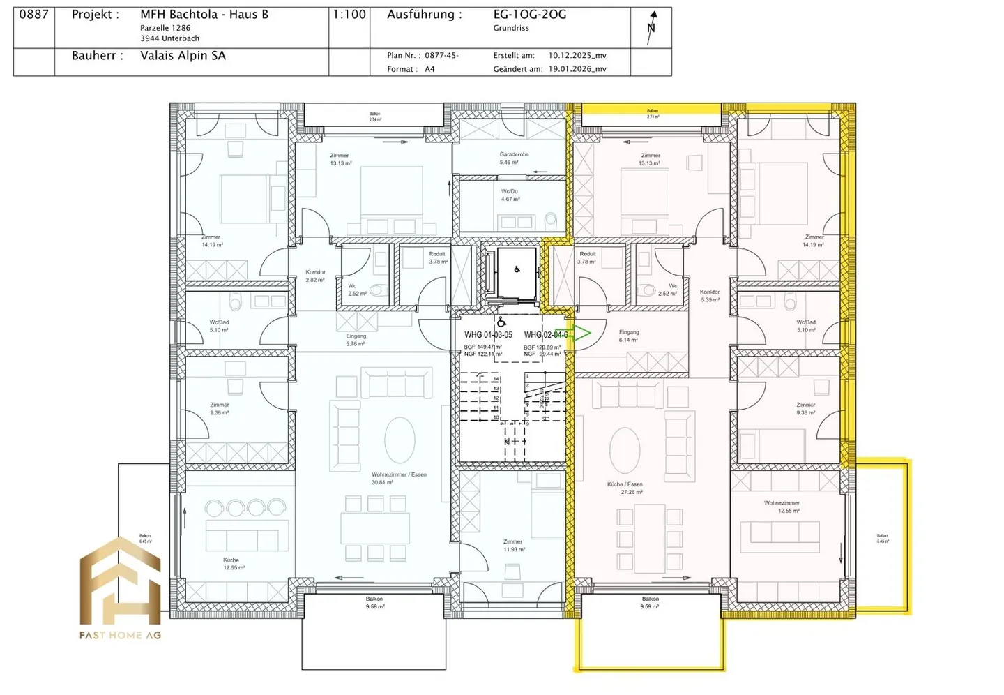
Innovatives Neubau-Projekt: Lichtdurchflutete 4.5 ZWG Wohnung
Unterbäch liegt auf einem sonnigen Hochplateau im Oberwallis und begeistert mit einem angenehmen Klima, viel Ruhe sowie einer eindrucksvollen Bergkulisse. Das charmante Dorf verbindet naturnahes Wohnen mit einer guten Infrastruktur und bietet ideale Voraussetzungen für Familien, Paare und Ruhesuchende, die Wert auf Lebensqualität und Erholung legen.
Diese helle und funktional konzipierte 4.5-Zimmer-Wohnung überzeugt durch ihre klare Raumstruktur, grosszügige Wohnflächen und eine angenehme Trenn...
Immobiliendetails
- Verfügbar ab
- Nach Vereinbarung
- Zimmer
- 4.5
- Baujahr
- 2026
- Wohnfläche
- 121 m²
- Etage
- 2.




