Wohnung kaufen - 3920 Zermatt
Warum Sie diese Immobilie lieben werden
Unverbaubarer Matterhornblick
Geräumige Terrasse von 125m²
Hochwertige moderne Ausstattungen
Besichtigung vereinbaren
Besichtigung buchen
Exklusives Wohnen mit freiem Matterhornblick und moderner Architektur
Exklusives Wohnen mit freiem Matterhornblick und moderner Architektur
Die Im begehrten Winkelmattenquartier von Zermatt, einem der ruhigsten und zugleich beliebtesten Wohnlagen des Dorfes, befindet sich diese aussergewöhnliche 4,5 Zimmer Wohnung. Das Quartier überzeugt durch seine idyllische Atmosphäre, die sonnige Lage sowie die unmittelbare Nähe zu den Bergbahnen, Wanderwegen und erstklassiger Gastronomie. Gleichzeitig geniesst man hier eine angenehme Distanz zum Dorfzentrum, was Ruhe und Erhol...
Immobiliendetails
- Verfügbar ab
- Nach Vereinbarung
- Zimmer
- 4.5
- Baujahr
- 2020
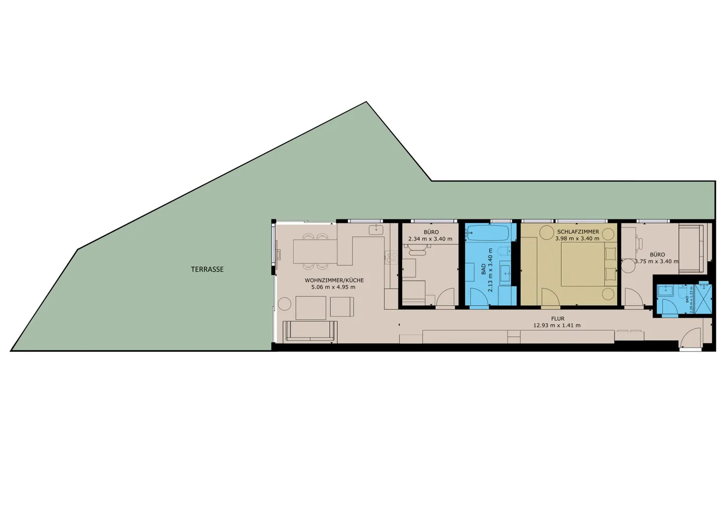
- Wohnfläche
- 100 m²
- Etage
- EG




