Wohnung kaufen - Weiacherstrasse 30, 8427 Rorbas
Warum Sie diese Immobilie lieben werden
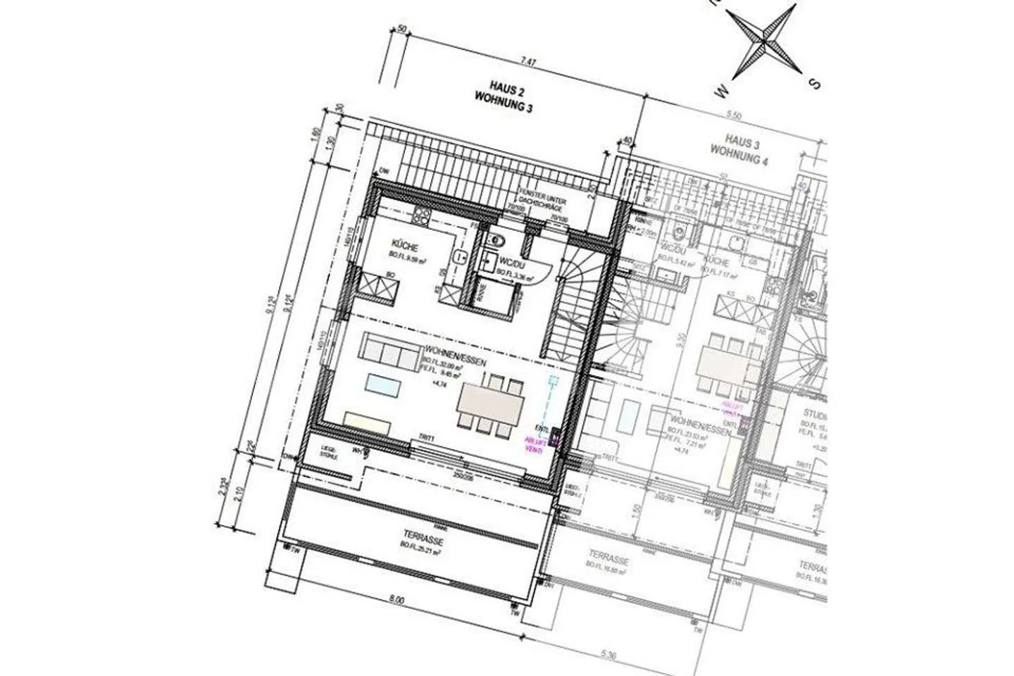
Grosse Terrasse für Entspannung
Nachhaltige Bauweise
Familienfreundliches Quartier
Besichtigung vereinbaren
Besichtigung buchen
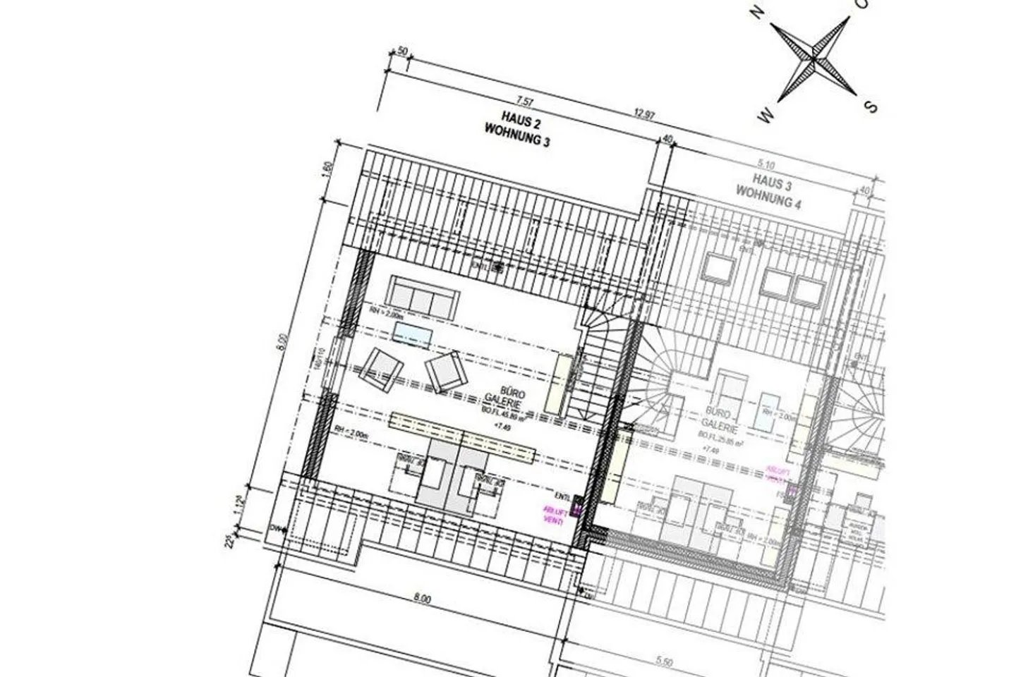
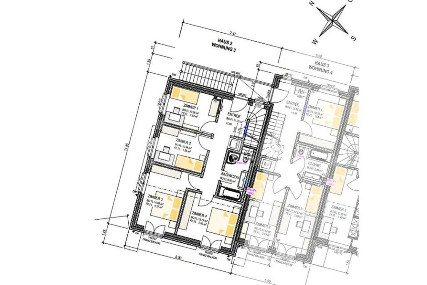
6.5-zimmer eigentumswohnung im neubauprojekt "smiledörfli wydum rorbas" - haus 2
Moderne 6.5-Zi.-ETW im OG-DG mit grosser Terrasse, Kaufpreis CHF 1299000.00 inklusive 2 TG-PP im Haus 2.
NWF 170 m²
Baustart erfolgt, Bezug Winter 2024/ Frühling 2025
Projekt mit einem Einfamilienhaus, Rheineinfamilienhäusern und
grosszügigen Eigentumswohnungen.
- Konventionell und nachhaltig erstellt mit Doppelschalenmauerwerk,
- 3-fach Verglasung usw. und einem zweckmässigen Innenausbau.
- pewiHAUS als tolles und sehr erfahrenes Realisierungsteam mit der
Erfahrung aus über 700 Bauten.
Lassen auch Sie...
Immobiliendetails
- Verfügbar ab
- Nach Vereinbarung
- Zimmer
- 6.5
- Baujahr
- 2025
- Wohnfläche
- 170 m²




