Penthouse kaufen - Route De Vaularbel 3, 1468 Cheyres
Warum Sie diese Immobilie lieben werden
Geräumige 30 m2 Terrasse
Privater Aufzugzugang
Anpassbare Ausführungen verfügbar
Besichtigung vereinbaren
Besichtigung buchen
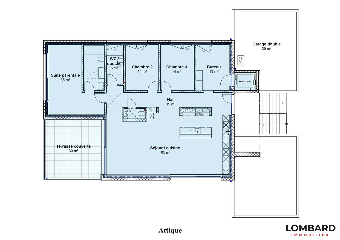
Prachtiges neues dachgeschoss mit blick auf den see
Ideal für Liebhaber von Komfort und Modernität, dieses geräumige Dachgeschoss von 170 m2 wird Sie mit seinen hellen Räumen und hochwertigen Ausführungen begeistern.
Die Wohnung besteht aus:
* Geräumiger Wohn-/Essbereich von 65 m2
* Offene Küche mit zentralem Insel
* Elternschlafzimmer von 35 m2 mit eigenem Bad
* Zwei geräumige Schlafzimmer und ein Büro
* Zweites Bad und ein Gästetoilette
* Große überdachte Terrasse von 30 m2 mit Blick auf den See
* Garage für zwei Fahrzeuge
* Privater Keller mit Waschküc...
Immobiliendetails
- Verfügbar ab
- 08.10.2024
- Zimmer
- 5.5
- Baujahr
- 2024
- Wohnfläche
- 170 m²
- Etage
- 1.




