Penthouse kaufen - Haushaldenstrasse 2a, 8374 Dussnang
Warum Sie diese Immobilie lieben werden
Neuer Parkettboden
Zwei sonnige Balkone
Nahe Schulen und Verkehrsmittel
Besichtigung vereinbaren
Besichtigung mit Josef buchen
Zu verkaufen an der haushaldenstrasse 2a in 8374 dussnang; 5½ zi.-d...
Fischingen
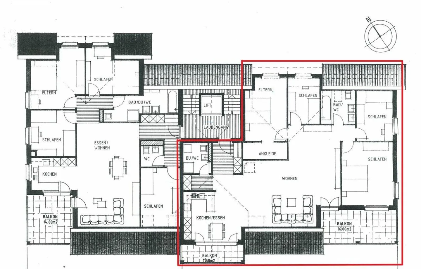
Zu verkaufen an der Haushaldenstrasse 2a in 8374 Dussnang 5 1/2 Zi.-Dachwohnung mit ca. 200 m2 Wohnfläche.
Schulen und ÖV in unmittelbarer Nähe.
Teilweise renoviert, neue Parkettböden in den Zimmern, Bad DU/WC und separat DU/WC, 2 sonnige Balkone.
Keller, grosser Estrich, Lift und 1 Tiefgaragenplatz.
Preis: Fr. 1'020'000.-
Telefon und Besichtigung von MO bis und mit SA, von 7.00 bis 20.00 Uhr.
Rufen Sie einfach an: 071 913 36 70 oder auch J. Eisenring: 079 438 77 70, wir helfen gerne !
Besic...
Immobiliendetails
- Verfügbar ab
- Nach Vereinbarung
- Zimmer
- 5.5
- Wohnfläche
- 200 m²


