Wohnung kaufen - Therwilerstrasse 27a, 4104 Oberwil BL
Warum Sie diese Immobilie lieben werden
Geräumiger Privatgarten
Moderne Küche mit Granit
Wintergarten mit Stadtblick
Besichtigung vereinbaren
Besichtigung mit Kevin buchen
Moderne 4.5-zimmer-wohnung mit garten und garage in oberwil
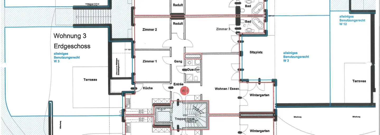
Entdecken Sie diese grosszügige 4.5-Zimmer-Wohnung im 1. Stock eines gepflegten Gebäudes aus dem Jahr 2007 in ruhiger Lage von Oberwil. Mit 120 m² Wohnfläche bietet diese rollstuhlgängige Wohnung höchsten Komfort für Familien.
_Die Wohnung überzeugt mit:_
* Moderne Küche: Hochwertig ausgestattet mit schwarzen Granit-Arbeitsplatten, weissen Schränken, eingebauter Mikrowelle, Elektroherd und Geschirrspüler
* Grosszügiges Wohnzimmer: Mit beigen Wänden, Teppichboden und Flachbildfernseher - ideal für g...
Immobiliendetails
- Verfügbar ab
- Nach Vereinbarung
- Zimmer
- 4.5
- Baujahr
- 2007
- Wohnfläche
- 120 m²
- Etage
- 1.




