Wohnung kaufen - Route De La Gare 26, 2012 Auvernier
Warum Sie diese Immobilie lieben werden
Atemberaubende See- und Bergblicke
Geräumige Terrassen und Balkone
Elegantes Leben nahe dem Hafen
Besichtigung vereinbaren
Besichtigung mit Juan buchen
Résidence azur - apartments mit hohem standard in auvernier
"TAG-ÖFFNUNG" am 25. Oktober zwischen 10:00 und 13:00.
Erleben Sie das Besondere im Herzen von Auvernier, einem der begehrtesten und emblematischsten Dörfer der neuchâtelois-Küstenregion.
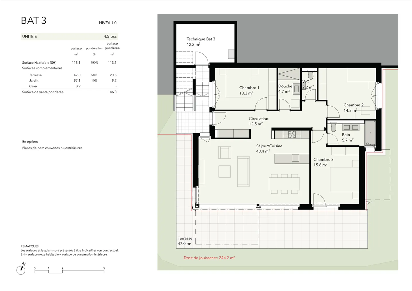
Die Résidence AZUR besteht aus drei eleganten Villen, von denen jede zwei Apartments mit 4,5 Zimmern im hochwertigen Komfort bietet, in einer seltenen Umgebung zwischen See und Weinbergen.
Jede Wohnung profitiert von einer schönen Helligkeit sowie von großen Terrassen oder Balkonen mit einer weiten Aussicht auf...
Immobiliendetails
- Verfügbar ab
- Nach Vereinbarung
- Zimmer
- 4.5
- Baujahr
- 2025
- Wohnfläche
- 146 m²
- Etage
- EG
- Geschosse
- 1


